yituLogo
当前的位置:首页 > 室内CAD图纸 > cad > 商业空间 > 商业零售 > 奢侈品店室内装修CAD施工效果方案

图纸介绍

空间划分:办公空间                    空间类型:专卖店,店铺

图纸深度:施工图                       项目位置:上海

设计风格:现代风格                    设计日期:2018

图纸格式:JPG,CAD2000           包含图片:效果图

简介:效果图9张、设计方案PDF、封面、目录、施工图纸、材料表、卷帘资料、勘察报告等,商业环境功能布局的要点是要以发挥出商业空间的最大作用,提高商业的经营效益为前提;同时还要考虑到方便与吸引顾客、易于营销活动的开展与管理。

 

 

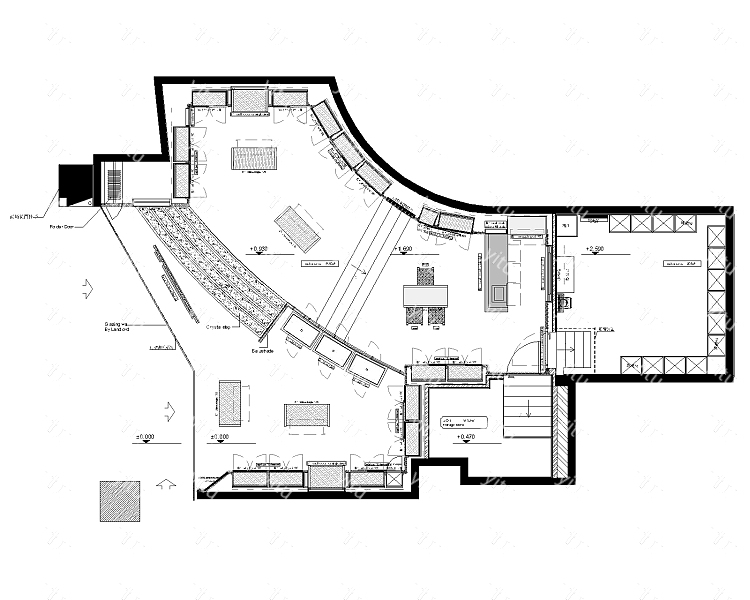
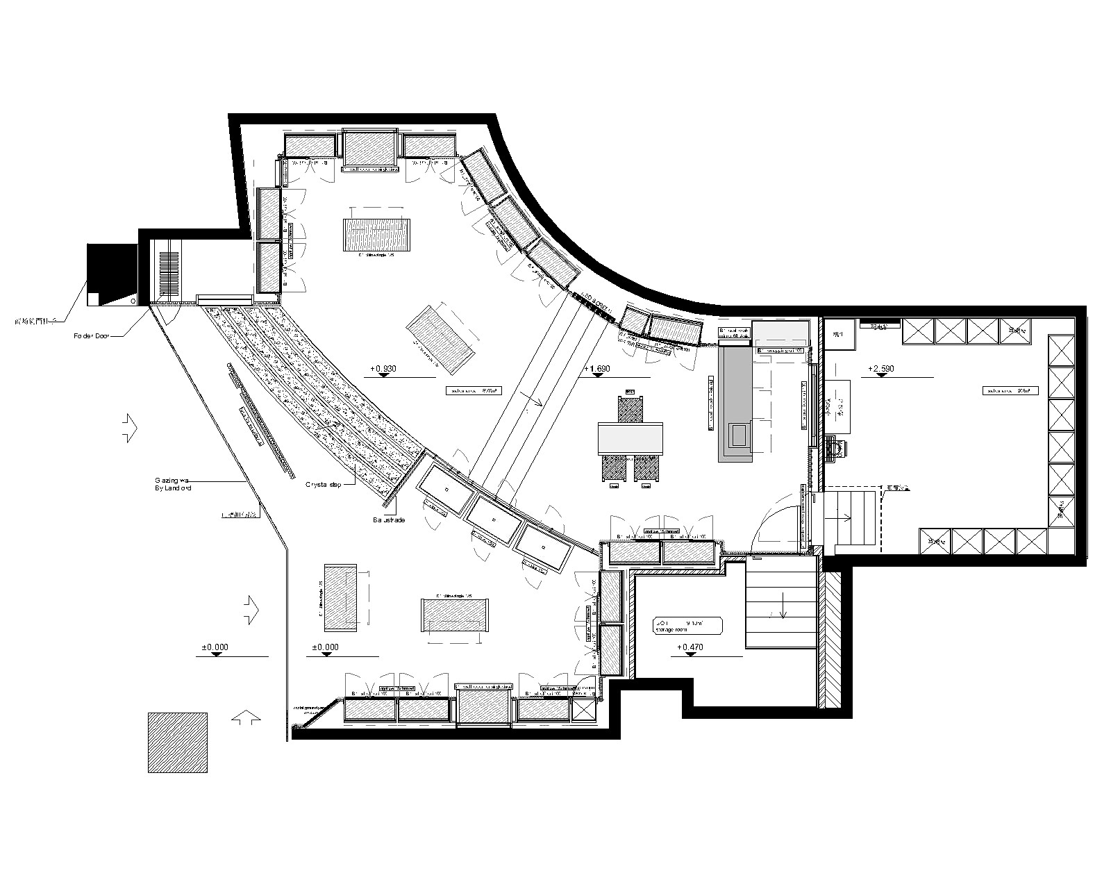
1<a href=https://www.yitu.cn/su/7392.html target=_blank class=infotextkey>平面</a>布置图_看图王

 

 

平面布置图

 

 

2天<a href=https://www.yitu.cn/sketchup/huayi/index.html target=_blank class=infotextkey>花</a><a href=https://www.yitu.cn/su/6833.html target=_blank class=infotextkey>灯具</a>布置图_看图王

 

 

灯具布置图

 

 

3柜体<a href=https://www.yitu.cn/su/7656.html target=_blank class=infotextkey>插座</a><a href=https://www.yitu.cn/su/7392.html target=_blank class=infotextkey>平面</a>图

 

 

柜体插座平面

 

 

4<a href=https://www.yitu.cn/su/7872.html target=_blank class=infotextkey>地</a>面铺装<a href=https://www.yitu.cn/su/7392.html target=_blank class=infotextkey>平面</a>图_看图王

 

 

面铺装平面

 

 

5立面索引图_看图王

 

 

立面索引图

 

 

6综合天<a href=https://www.yitu.cn/sketchup/huayi/index.html target=_blank class=infotextkey>花</a>图_看图王

 

 

综合天

 

 

<a href=https://www.yitu.cn/su/7103.html target=_blank class=infotextkey>联盟</a>素材库 (1)

 

 

室内效果图1

 

 

<a href=https://www.yitu.cn/su/7103.html target=_blank class=infotextkey>联盟</a>素材库 (2)

 

 

室内效果图2

 

 

<a href=https://www.yitu.cn/su/7103.html target=_blank class=infotextkey>联盟</a>素材库 (3)

 

 

室内效果图3

 

 

<a href=https://www.yitu.cn/su/7103.html target=_blank class=infotextkey>联盟</a>素材库 (4)

 

 

室内效果图4

 

 

<a href=https://www.yitu.cn/su/7103.html target=_blank class=infotextkey>联盟</a>素材库 (5)

 

 

室内设计1

 

 

<a href=https://www.yitu.cn/su/7103.html target=_blank class=infotextkey>联盟</a>素材库 (6)

 

 

室内设计2

 

 

<a href=https://www.yitu.cn/su/7103.html target=_blank class=infotextkey>联盟</a>素材库 (7)

 

 

室内设计3

 

 

<a href=https://www.yitu.cn/su/7103.html target=_blank class=infotextkey>联盟</a>素材库 (8)

 

 

室内设计4

 

 

<a href=https://www.yitu.cn/su/7103.html target=_blank class=infotextkey>联盟</a>素材库 (9)

 

 

室内设计5

 

 

总缩略图

 

 

总缩略图

奢侈品店室内装修CAD施工效果方案

ID:16929
软     件:sketchup 大     小:51.90MB 上 传 时 间:20191104 消 耗 积 分:30
  • 收藏 ()
  • 评论 ()
  • ⚠图纸报错

wangyiting QQ登陆会员

关注
SU模型、3D模型、贴图、材质、CAD施工图素材:

su模型,su素材库,3d模型,3d模型库,3d模型下载,3d模型素材,3dmax模型免费下载,cad施工图纸,3d材质贴图,沙发SU模型,椅凳SU模型,柜类SU模型,厨卫SU模型,3D沙发模型,3D陈设饰品,3D柜类模型,3D家装空间,家装CAD图纸,CAD图库,CAD节点详图,橱柜衣柜CAD图纸,CAD施工图,居住建筑效果图,工业建筑效果图,公共建筑效果图

友情链接 热门模型 免费模型