yituLogo
当前的位置:首页 > 室内CAD图纸 > cad > 商业空间 > 商业零售 > 游客接待中心施工图案例

图纸介绍

空间划分:成套商业                               空间类型:店铺,其他

图纸深度:竣工图                                   项目位置:吉林

设计风格:现代风格,新中式风格         图纸格式:JPG,CAD2000,PDF

设计时间:2019                                     包含图片:效果图

层数:2层                                            建筑面积:2414m²

资料内容包含:CAD施工图(图纸目录,施工图设计说明,平面图,立面图,节点大样,图纸等)材料表,工程量清单,招标文件等,接待中心的空间是重点,大的空间能容纳更多的游客前来游玩。

 

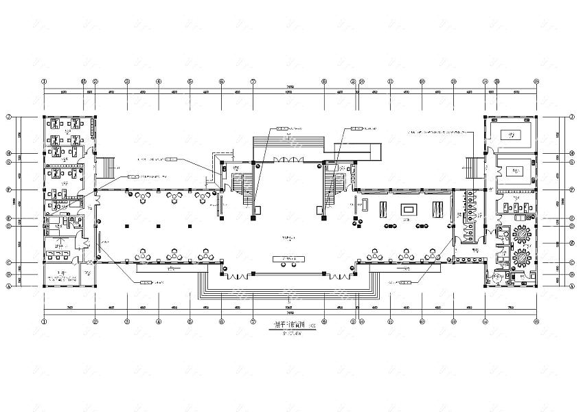
一层<a href=https://www.yitu.cn/su/7392.html target=_blank class=infotextkey>平面</a>布置图

 

一层平面布置图

 

一层天<a href=https://www.yitu.cn/sketchup/huayi/index.html target=_blank class=infotextkey>花</a>布置图

 

一层天布置图

 

一层拆除墙体图

 

一层拆除墙体图

 

一层<a href=https://www.yitu.cn/su/7872.html target=_blank class=infotextkey>地</a>面铺装图

 

一层面铺装图

 

一层灭火器<a href=https://www.yitu.cn/su/7392.html target=_blank class=infotextkey>平面</a>布置图

 

一层灭火器平面布置图

 

二层<a href=https://www.yitu.cn/su/7392.html target=_blank class=infotextkey>平面</a>布置图

 

二层平面布置图

 

二层立面图

 

二层立面图

 

一层立面图

 

一层立面图

 

一层立面图2

 

一层立面图2

游客接待中心施工图案例

ID:16917
软     件:sketchup 大     小:83.10MB 上 传 时 间:20191104 消 耗 积 分:30
  • 收藏 ()
  • 评论 ()
  • ⚠图纸报错

wangyiting QQ登陆会员

关注
SU模型、3D模型、贴图、材质、CAD施工图素材:

su模型,su素材库,3d模型,3d模型库,3d模型下载,3d模型素材,3dmax模型免费下载,cad施工图纸,3d材质贴图,沙发SU模型,椅凳SU模型,柜类SU模型,厨卫SU模型,3D沙发模型,3D陈设饰品,3D柜类模型,3D家装空间,家装CAD图纸,CAD图库,CAD节点详图,橱柜衣柜CAD图纸,CAD施工图,居住建筑效果图,工业建筑效果图,公共建筑效果图

友情链接 热门模型 免费模型