yituLogo
当前的位置:首页 > 室内CAD图纸 > cad > 商业空间 > 商业零售 > 品牌服装专卖店室内施工图

图纸介绍

空间划分:成套商业                                     空间类型:专卖店

图纸深度:竣工图                                         项目位置:上海

设计风格:现代风格                                      图纸格式:CAD2000,JPG

设计时间:2018                                            包含图片:效果图

层数:1层

内容简介:效果图、CAD施工图(图纸目录,施工图设计说明、平面图,立面图,节点大样等)材料表,方案,物料书,机电图纸等,相关研究表明,当顾客进入零售空间时,他们自然会向右转。为了充分利用这一点,零售商应在商店的右侧放置视觉上引注目的标志或显示屏。

 

 

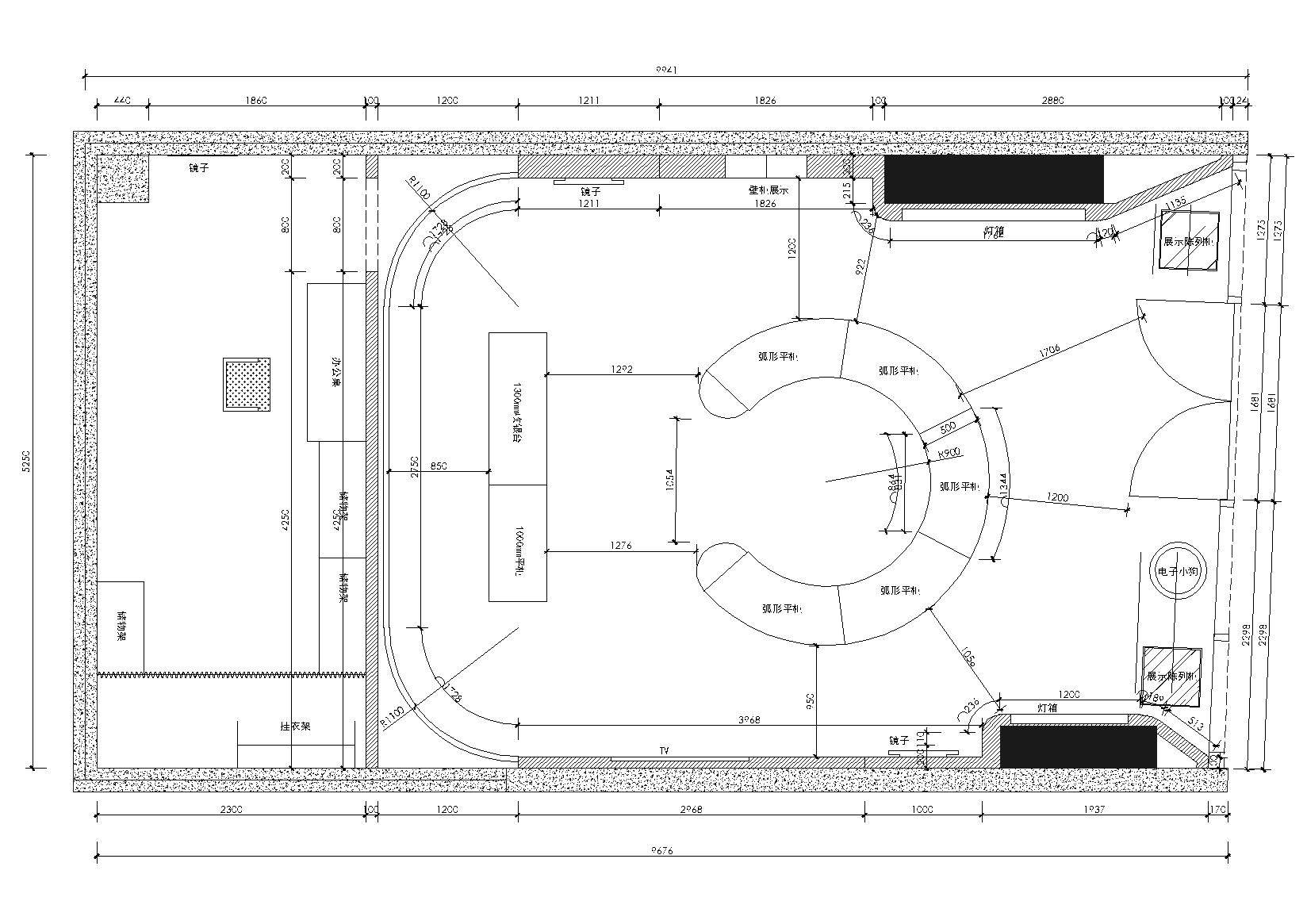
<a href=https://www.yitu.cn/su/7392.html target=_blank class=infotextkey>平面</a>布置图

 

 

平面布置图

 

 

综合天<a href=https://www.yitu.cn/sketchup/huayi/index.html target=_blank class=infotextkey>花</a>图

 

 

综合天

 

 

<a href=https://www.yitu.cn/su/6833.html target=_blank class=infotextkey>灯具</a>定位图

 

 

灯具定位图

 

 

<a href=https://www.yitu.cn/su/7872.html target=_blank class=infotextkey>地</a>面布置图

 

 

面布置图

 

 

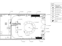
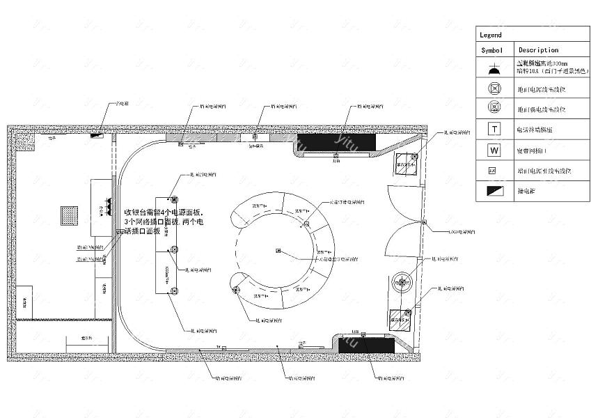
电气系统图

 

 

电气系统图

 

 

机电布置图

 

 

机电布置图

 

 

立面图

 

 

立面图

 

 

立面图2

 

 

立面图2

 

 

立面图3

 

 

立面图3

 

品牌服装专卖店室内施工图

ID:16849
软     件:sketchup 大     小:5.80MB 上 传 时 间:20191104 消 耗 积 分:30
  • 收藏 ()
  • 评论 ()
  • ⚠图纸报错

wangyiting QQ登陆会员

关注
SU模型、3D模型、贴图、材质、CAD施工图素材:

su模型,su素材库,3d模型,3d模型库,3d模型下载,3d模型素材,3dmax模型免费下载,cad施工图纸,3d材质贴图,沙发SU模型,椅凳SU模型,柜类SU模型,厨卫SU模型,3D沙发模型,3D陈设饰品,3D柜类模型,3D家装空间,家装CAD图纸,CAD图库,CAD节点详图,橱柜衣柜CAD图纸,CAD施工图,居住建筑效果图,工业建筑效果图,公共建筑效果图

友情链接 热门模型 免费模型