yituLogo
当前的位置:首页 > 室内CAD图纸 > cad > 建筑方案设计 > 别墅建筑图纸 > 中国古典别墅施工图,别墅CAD图纸下载

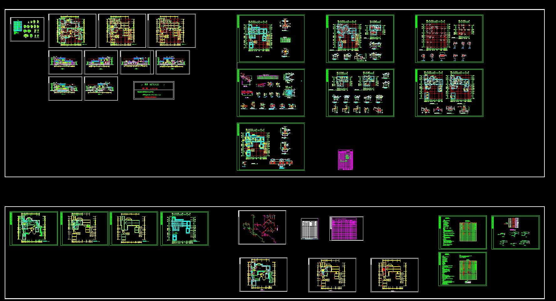
图纸介绍

            空间划分:成套别墅                                                                                       图纸深度:施工图

            建筑类型:别墅                                                                                              图纸格式:JPG

           设计风格:中式

资料为:中国古典别墅施工图

资料内容包括:全套中国古典别墅施工图,别墅一层平面图,别墅二层平面图,别墅屋顶平面图,基础平面布置图,基础平面图,立面图等,具有完整详细的别墅CAD施工图,该图纸制作详细规范,文字标注统一,细节详尽丰富,内容详实,尺寸大小合理,具有很高的参考价值,可以作为参考学习的模板,供设计师、建筑师下载参考。

部分图纸展示:

基础<a href=https://www.yitu.cn/su/7392.html target=_blank class=infotextkey>平面</a>图.jpg

 

基础平面

 

立面图.jpg

 

立面图

 

立面图1.jpg

 

立面图

 

立面图2.jpg

 

立面图

 

屋顶<a href=https://www.yitu.cn/su/7392.html target=_blank class=infotextkey>平面</a>图.jpg

 

屋顶平面

 

一层<a href=https://www.yitu.cn/su/7392.html target=_blank class=infotextkey>平面</a>图.jpg

 

一层平面

中国古典别墅施工图,别墅CAD图纸下载

ID:90405
软     件:sketchup 大     小:1.60MB 上 传 时 间:20200904 消 耗 积 分:30
  • 收藏 ()
  • 评论 ()
  • ⚠图纸报错

qianqian 普通会员

关注
  • 户外垃圾桶
  • 户外垃圾桶
  • 户外垃圾桶
图纸使用权利说明:

会员在本站下载的原创CAD图库后,只拥有CAD图库的使用权,著作权归原作者及易图网所有。未经合法授权,会员不得以任何形式发布、传播、复制、转售该CAD图库。特别地,不得擅自以易图网名义或使用"易图"、"易图网"(本站注册商标)名称发布、复制、转售所下载的CAD图库,由此给本站造成损害的,本站将依法追究其相关法律责任。

友情链接 热门模型 免费模型