yituLogo
当前的位置:首页 > 室内CAD图纸 > cad > 机电设备 > 建筑暖通施工图 > 某综合楼空调采暖设计图纸,空调采暖CAD工程图纸下载

图纸介绍

               空间划分:成套空调                                                                       图纸深度:施工图

                建筑类型:综合                                                                          图纸格式:JPG

                设计风格:现代

资料为:某综合空调采暖设计图纸

资料内容包括:全套某综合空调采暖图,一层空调平面图,二层空调平面图,三层空调平面图,四、五层空调平面图,九、十层采暖平面图,九、十层空调平面图,六层空调平面图,七、八层空调平面图,暖通设计施工说明等。该图纸制作详细规范,文字标注统一,细节详尽丰富,内容详实,尺寸大小合理,具有很高的参考价值,可以作为参考学习的模板,供设计师、建筑师下载参考。

部分图纸展示:

六层<a href=https://www.yitu.cn/sketchup/kongdiaofengshan/index.html target=_blank class=infotextkey>空调</a><a href=https://www.yitu.cn/su/7392.html target=_blank class=infotextkey>平面</a>图.jpg

 

六层空调平面

 

七、八层<a href=https://www.yitu.cn/sketchup/kongdiaofengshan/index.html target=_blank class=infotextkey>空调</a><a href=https://www.yitu.cn/su/7392.html target=_blank class=infotextkey>平面</a>图.jpg

 

七、八层空调平面

 

三层<a href=https://www.yitu.cn/sketchup/kongdiaofengshan/index.html target=_blank class=infotextkey>空调</a><a href=https://www.yitu.cn/su/7392.html target=_blank class=infotextkey>平面</a>图.jpg

 

三层空调平面

 

四、五层<a href=https://www.yitu.cn/sketchup/kongdiaofengshan/index.html target=_blank class=infotextkey>空调</a><a href=https://www.yitu.cn/su/7392.html target=_blank class=infotextkey>平面</a>图.jpg

 

四、五层空调平面

 

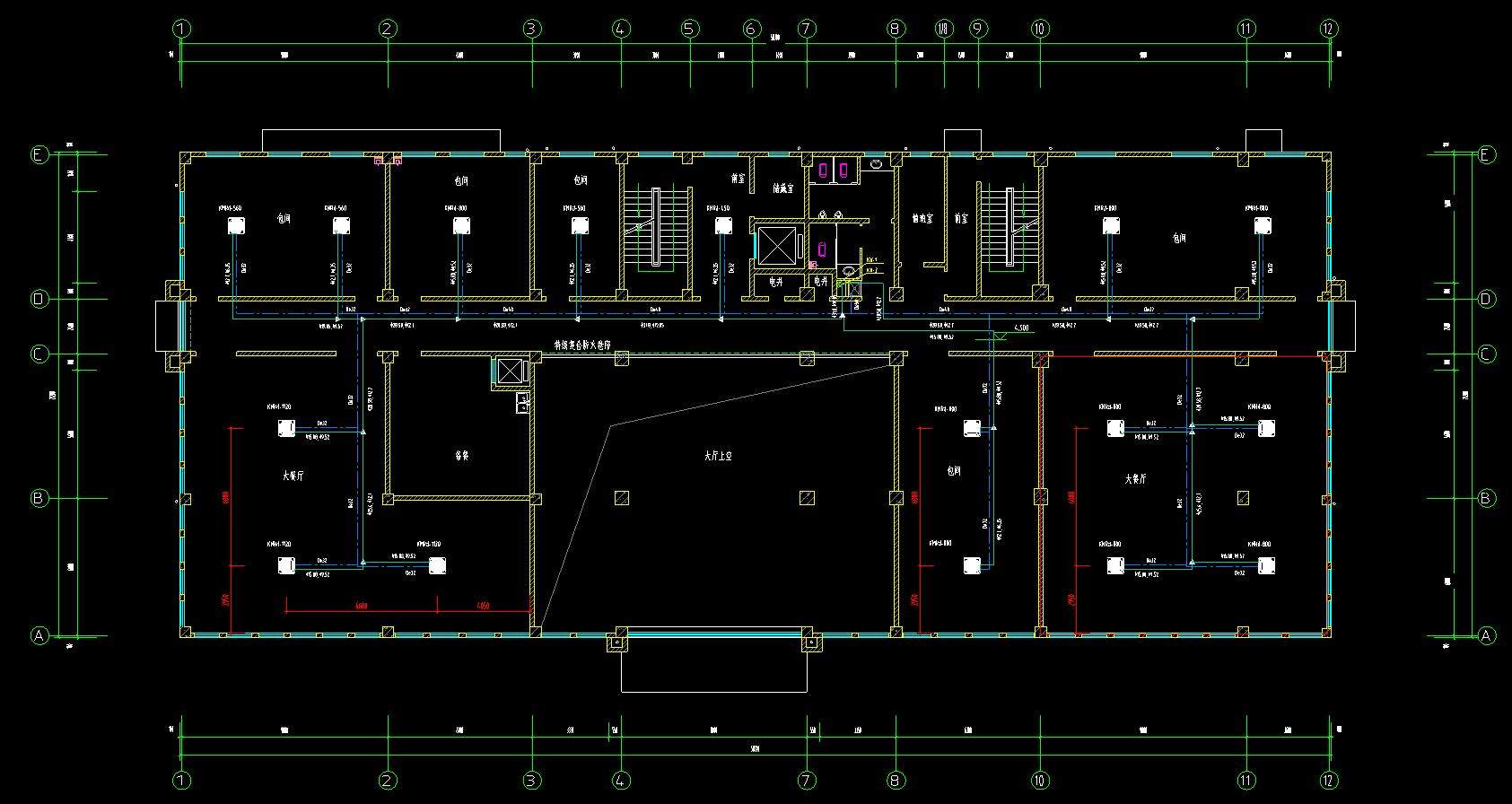
一层<a href=https://www.yitu.cn/sketchup/kongdiaofengshan/index.html target=_blank class=infotextkey>空调</a><a href=https://www.yitu.cn/su/7392.html target=_blank class=infotextkey>平面</a>图.jpg

 

一层空调平面

 

暖通<a href=https://www.yitu.cn/su/7590.html target=_blank class=infotextkey>设计</a>施工说明.jpg

 

暖通设计施工说明

某综合楼空调采暖设计图纸,空调采暖CAD工程图纸下载

ID:90392
软     件:sketchup 大     小:0.80MB 上 传 时 间:20200904 消 耗 积 分:30
  • 收藏 ()
  • 评论 ()
  • ⚠图纸报错

qianqian 普通会员

关注
  • 户外垃圾桶
  • 户外垃圾桶
  • 户外垃圾桶
图纸使用权利说明:

会员在本站下载的原创CAD图库后,只拥有CAD图库的使用权,著作权归原作者及易图网所有。未经合法授权,会员不得以任何形式发布、传播、复制、转售该CAD图库。特别地,不得擅自以易图网名义或使用"易图"、"易图网"(本站注册商标)名称发布、复制、转售所下载的CAD图库,由此给本站造成损害的,本站将依法追究其相关法律责任。

友情链接 热门模型 免费模型