SUQQ群
QQ扫一扫


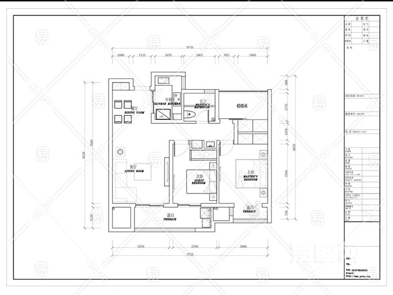
上一篇:CAD两室一厅户型平面图
下一篇:CAD两室一厅户型平面图
会员在本站下载的原创CAD图库后,只拥有CAD图库的使用权,著作权归原作者及易图网所有。未经合法授权,会员不得以任何形式发布、传播、复制、转售该CAD图库。特别地,不得擅自以易图网名义或使用"易图"、"易图网"(本站注册商标)名称发布、复制、转售所下载的CAD图库,由此给本站造成损害的,本站将依法追究其相关法律责任。
Copyright 易图网 2006-2025 All Rights Reserved ICP证:蜀ICP备2023015644号-6
四川鑫众焱信息技术服务有限公司| 地址:绵阳市涪城区瀚威城市中心1栋1单元42层2号