yituLogo
当前的位置:首页 > 室内CAD图纸 > cad > 商业空间 > 展厅展馆 > 某皮床家具展厅方案设计施工图

图纸介绍

空间划分:成套展览展示                                          空间类型:展厅

图纸深度:施工图                                                     项目位置:广东

设计风格:现代风格                                                  图纸格式:CAD2000

图纸张数:100张                                                      设计时间:2016

包含图片:效果图

内容简介:

[深圳]某皮床家具展厅方案设计施工图(含效果图)。采用现代的设计风格,对平面图(平面布局图,尺寸定位平面图,索引平面图,平面图,墙面刷色平面图,插座平面图,天平面图,天灯具尺寸图,天详图);立面图;剖面图进行初步设计

 

 

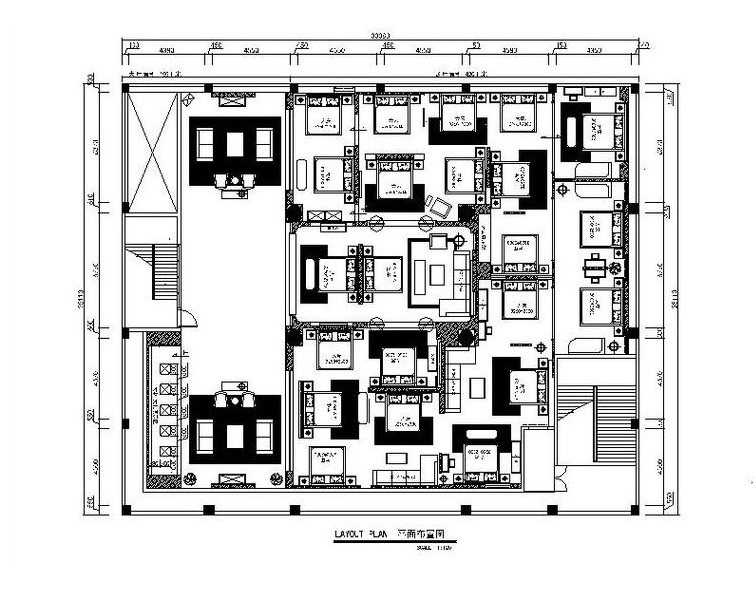
[深圳]某皮床家具<a href=https://www.yitu.cn/sketchup/zhanting/index.html target=_blank class=infotextkey>展厅</a>方案<a href=https://www.yitu.cn/su/7590.html target=_blank class=infotextkey>设计</a><a href=https://www.yitu.cn/su/7392.html target=_blank class=infotextkey>平面</a>图

 

[深圳]某皮床家具展厅方案设计平面

 

[深圳]某皮床家具<a href=https://www.yitu.cn/sketchup/zhanting/index.html target=_blank class=infotextkey>展厅</a>方案<a href=https://www.yitu.cn/su/7590.html target=_blank class=infotextkey>设计</a>效果图

 

[深圳]某皮床家具展厅方案设计效果图

 

[深圳]某皮床家具<a href=https://www.yitu.cn/sketchup/zhanting/index.html target=_blank class=infotextkey>展厅</a>方案<a href=https://www.yitu.cn/su/7590.html target=_blank class=infotextkey>设计</a>效果图

 

[深圳]某皮床家具展厅方案设计效果图

 

[深圳]某皮床家具<a href=https://www.yitu.cn/sketchup/zhanting/index.html target=_blank class=infotextkey>展厅</a>方案<a href=https://www.yitu.cn/su/7590.html target=_blank class=infotextkey>设计</a>立面图

 

[深圳]某皮床家具展厅方案设计立面图

 

[深圳]某皮床家具<a href=https://www.yitu.cn/sketchup/zhanting/index.html target=_blank class=infotextkey>展厅</a>方案<a href=https://www.yitu.cn/su/7590.html target=_blank class=infotextkey>设计</a>立面图

 

[深圳]某皮床家具展厅方案设计立面图

 

[深圳]某皮床家具<a href=https://www.yitu.cn/sketchup/zhanting/index.html target=_blank class=infotextkey>展厅</a>方案<a href=https://www.yitu.cn/su/7590.html target=_blank class=infotextkey>设计</a>立面图

 

[深圳]某皮床家具展厅方案设计立面图

 

[深圳]某皮床家具<a href=https://www.yitu.cn/sketchup/zhanting/index.html target=_blank class=infotextkey>展厅</a>方案<a href=https://www.yitu.cn/su/7590.html target=_blank class=infotextkey>设计</a>立面图

 

[深圳]某皮床家具展厅方案设计立面图

某皮床家具展厅方案设计施工图

ID:16936
软     件:sketchup 大     小:9.10MB 上 传 时 间:20191105 消 耗 积 分:30
  • 收藏 ()
  • 评论 ()
  • ⚠图纸报错

strawberry 普通会员

UI社UI社UI社UI社UI社UI社UI社UI社UI社UI社UI社UI社UI社
关注
SU模型、3D模型、贴图、材质、CAD施工图素材:

su模型,su素材库,3d模型,3d模型库,3d模型下载,3d模型素材,3dmax模型免费下载,cad施工图纸,3d材质贴图,沙发SU模型,椅凳SU模型,柜类SU模型,厨卫SU模型,3D沙发模型,3D陈设饰品,3D柜类模型,3D家装空间,家装CAD图纸,CAD图库,CAD节点详图,橱柜衣柜CAD图纸,CAD施工图,居住建筑效果图,工业建筑效果图,公共建筑效果图

友情链接 热门模型 免费模型