yituLogo
当前的位置:首页 > 室内CAD图纸 > cad > 商业空间 > 展厅展馆 > 某知名现代简约连锁装饰品展厅室内设计施工图

图纸介绍

图纸深度:施工图                                         项目位置:福建

设计风格:现代风格                                     图纸格式:CAD2000

图纸张数:48张                                            包含图片:效果图

内容简介:

[福州]某知名现代简约连锁装饰品展厅室内设计施工图(含效果图)。采用现代的设计风格,对施工说明、平面图(平面布置图、墙体定位图、构件布置图、吊顶布置图、开关布置图、强弱电布置图、给排布置图、面材质铺装图、立面索引图)等进行设计完善。

 

 

1

 

 

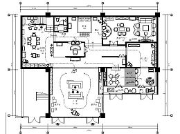
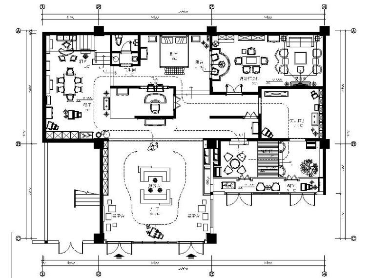
[福州]某知名现代简约连锁装饰品展厅室内设计平面

 

 

2

 

 

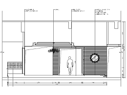
[福州]某知名现代简约连锁装饰品展厅室内设计立面图

 

 

3

 

 

[福州]某知名现代简约连锁装饰品展厅室内设计立面图

 

 

4

 

 

[福州]某知名现代简约连锁装饰品展厅室内设计立面图

 

 

5

 

 

[福州]某知名现代简约连锁装饰品展厅室内设计立面图

 

 

6

 

 

[福州]某知名现代简约连锁装饰品展厅室内设计立面图

 

 

7

 

 

[福州]某知名现代简约连锁装饰品展厅室内设计立面图

 

 

8

 

 

[福州]某知名现代简约连锁装饰品展厅室内设计立面图

某知名现代简约连锁装饰品展厅室内设计施工图

ID:16904
软     件:sketchup 大     小:9.30MB 上 传 时 间:20191104 消 耗 积 分:30
  • 收藏 ()
  • 评论 ()
  • ⚠图纸报错

strawberry 普通会员

UI社UI社UI社UI社UI社UI社UI社UI社UI社UI社UI社UI社UI社
关注
SU模型、3D模型、贴图、材质、CAD施工图素材:

su模型,su素材库,3d模型,3d模型库,3d模型下载,3d模型素材,3dmax模型免费下载,cad施工图纸,3d材质贴图,沙发SU模型,椅凳SU模型,柜类SU模型,厨卫SU模型,3D沙发模型,3D陈设饰品,3D柜类模型,3D家装空间,家装CAD图纸,CAD图库,CAD节点详图,橱柜衣柜CAD图纸,CAD施工图,居住建筑效果图,工业建筑效果图,公共建筑效果图

友情链接 热门模型 免费模型