yituLogo
当前的位置:首页 > 室内CAD图纸 > cad > 工装图纸 > 酒店宾馆 > 民宿平剖图施工图CAD图纸,民宿cad设计图纸下载

图纸介绍

                                  空间划分:成套酒店                                                                       图纸深度:施工图

                                  图纸格式:JPG                                                                              设计风格:现代

资料为:民宿平剖图施工图CAD图纸

资料内容包括:全套施工图、坪饰面图、灯具布置图、家具布置图、平面布置图、平面索引图、天布置图、完成面尺寸图、综合天布置图。空间设置合理规范,具有较高的参考价值,可作为参考学习的模板,供设计师、建筑师下载参考。

部分图纸展示如下:

d<a href=https://www.yitu.cn/su/7212.html target=_blank class=infotextkey>户型</a>二层<a href=https://www.yitu.cn/su/7392.html target=_blank class=infotextkey>平面</a>图.jpg

d户型二层平面

 

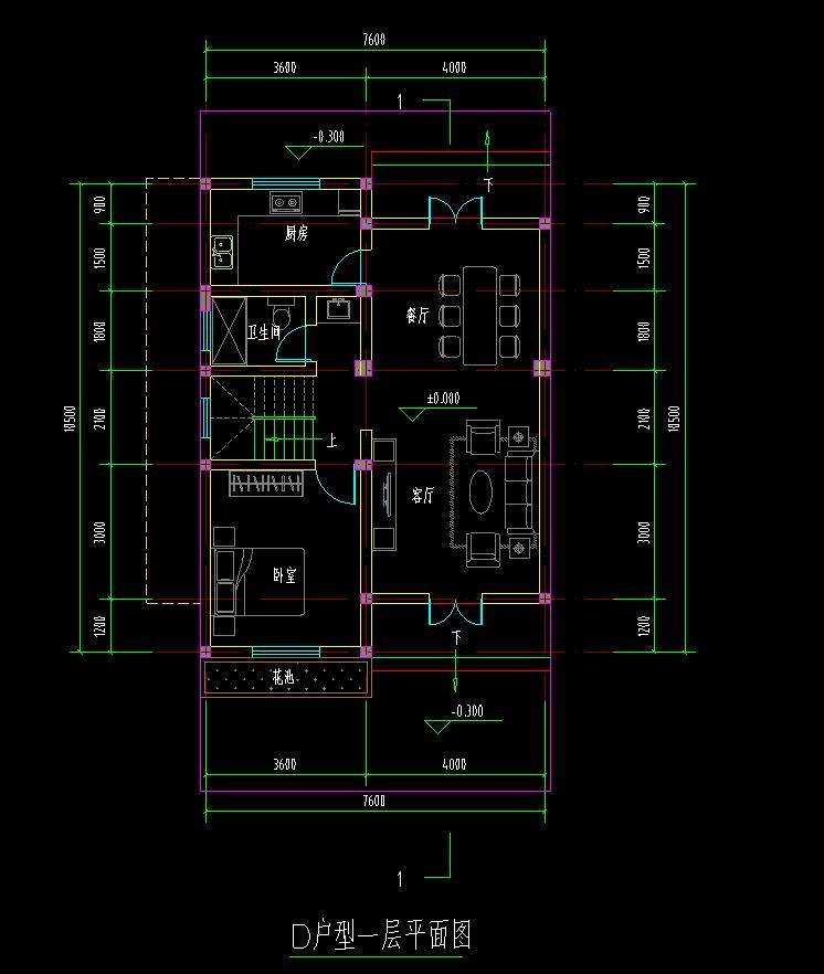
d<a href=https://www.yitu.cn/su/7212.html target=_blank class=infotextkey>户型</a>一层<a href=https://www.yitu.cn/su/7392.html target=_blank class=infotextkey>平面</a>图.jpg

 

d户型一层平面

 

二层<a href=https://www.yitu.cn/su/7392.html target=_blank class=infotextkey>平面</a>图、一层<a href=https://www.yitu.cn/su/7392.html target=_blank class=infotextkey>平面</a>图、剖面图.jpg

 

二层平面图、一层平面图、剖面图

 

剖面图.jpg

 

剖面图

民宿平剖图施工图CAD图纸,民宿cad设计图纸下载

ID:91970
软     件:sketchup 大     小:23.30MB 上 传 时 间:20211130 消 耗 积 分:20
  • 收藏 ()
  • 评论 ()
  • ⚠图纸报错

qianqian 普通会员

关注
  • 户外垃圾桶
  • 户外垃圾桶
  • 户外垃圾桶
SU模型、3D模型、贴图、材质、CAD施工图素材:

su模型,su素材库,3d模型,3d模型库,3d模型下载,3d模型素材,3dmax模型免费下载,cad施工图纸,3d材质贴图,沙发SU模型,椅凳SU模型,柜类SU模型,厨卫SU模型,3D沙发模型,3D陈设饰品,3D柜类模型,3D家装空间,家装CAD图纸,CAD图库,CAD节点详图,橱柜衣柜CAD图纸,CAD施工图,居住建筑效果图,工业建筑效果图,公共建筑效果图

友情链接 热门模型 免费模型