yituLogo
当前的位置:首页 > 室内CAD图纸 > cad > 家装图纸 > 家居 > 欧式古典住宅施工图CAD图纸,家装CAD设计图纸下载

图纸介绍

            空间划分:成套住宅空间                                                                                 图纸深度 :施工图

            住宅空间类型:家装                                                                                         图纸格式:DWG

           设计风格:现代                                                                                                包含图片:效果图

资料为:欧式古典住宅施工图

资料内容包括:全套施工图、面铺装图、梁结构图、平面布置图、墙体放线图、天棚布置图、原始结构图。空间设置合理规范,具有较高的参考价值,可作为参考学习的模板,供设计师、建筑师下载参考。

部分图纸展示如下:

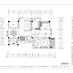
<a href=https://www.yitu.cn/su/7392.html target=_blank class=infotextkey>平面</a>方案布置图.jpg /></p>
<p style= 

平面方案布置图

 

墙体拆除<a href=https://www.yitu.cn/su/7392.html target=_blank class=infotextkey>平面</a>图.jpg

墙体拆除平面

 

新建墙体尺寸定位图.jpg

 

新建墙体尺寸定位图

 

原始<a href=https://www.yitu.cn/su/7392.html target=_blank class=infotextkey>平面</a>图.jpg

 

原始平面

 

<a href=https://www.yitu.cn/su/7941.html target=_blank class=infotextkey>装饰</a>完成面尺寸图.jpg

 

装饰完成面尺寸图

欧式古典住宅施工图CAD图纸,家装CAD设计图纸下载

ID:93872
软     件:sketchup 大     小:168.80MB 上 传 时 间:20220621 消 耗 积 分:20
  • 收藏 ()
  • 评论 ()
  • ⚠图纸报错

qianqian 普通会员

关注
  • 户外垃圾桶
  • 户外垃圾桶
  • 户外垃圾桶
SU模型、3D模型、贴图、材质、CAD施工图素材:

su模型,su素材库,3d模型,3d模型库,3d模型下载,3d模型素材,3dmax模型免费下载,cad施工图纸,3d材质贴图,沙发SU模型,椅凳SU模型,柜类SU模型,厨卫SU模型,3D沙发模型,3D陈设饰品,3D柜类模型,3D家装空间,家装CAD图纸,CAD图库,CAD节点详图,橱柜衣柜CAD图纸,CAD施工图,居住建筑效果图,工业建筑效果图,公共建筑效果图

友情链接 热门模型 免费模型