SUQQ群
QQ扫一扫




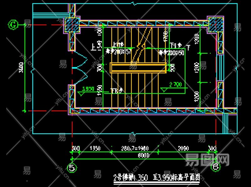
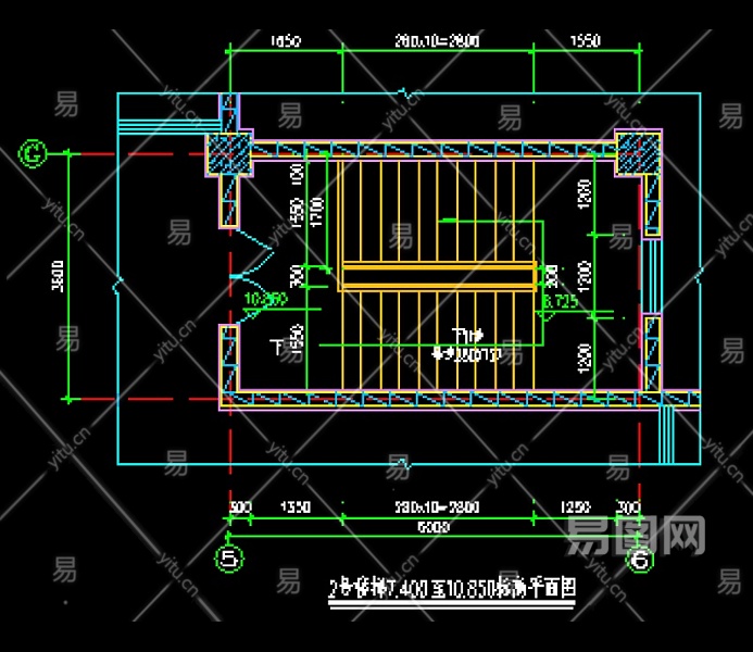
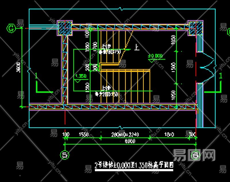
上一篇:某地小区地下室酒窖装修设计施工图
下一篇:某地小区地下室酒窖装修设计施工图
su模型,su素材库,3d模型,3d模型库,3d模型下载,3d模型素材,3dmax模型免费下载,cad施工图纸,3d材质贴图,沙发SU模型,椅凳SU模型,柜类SU模型,厨卫SU模型,3D沙发模型,3D陈设饰品,3D柜类模型,3D家装空间,家装CAD图纸,CAD图库,CAD节点详图,橱柜衣柜CAD图纸,CAD施工图,居住建筑效果图,工业建筑效果图,公共建筑效果图
Copyright 易图网 2006-2025 All Rights Reserved ICP证:蜀ICP备2023015644号-6
四川鑫众焱信息技术服务有限公司| 地址:绵阳市涪城区瀚威城市中心1栋1单元42层2号