yituLogo
当前的位置:首页 > 文本 > 景观文本 > 医院疗养景观 > 浙江绿城养老公寓住宅建筑规划方案

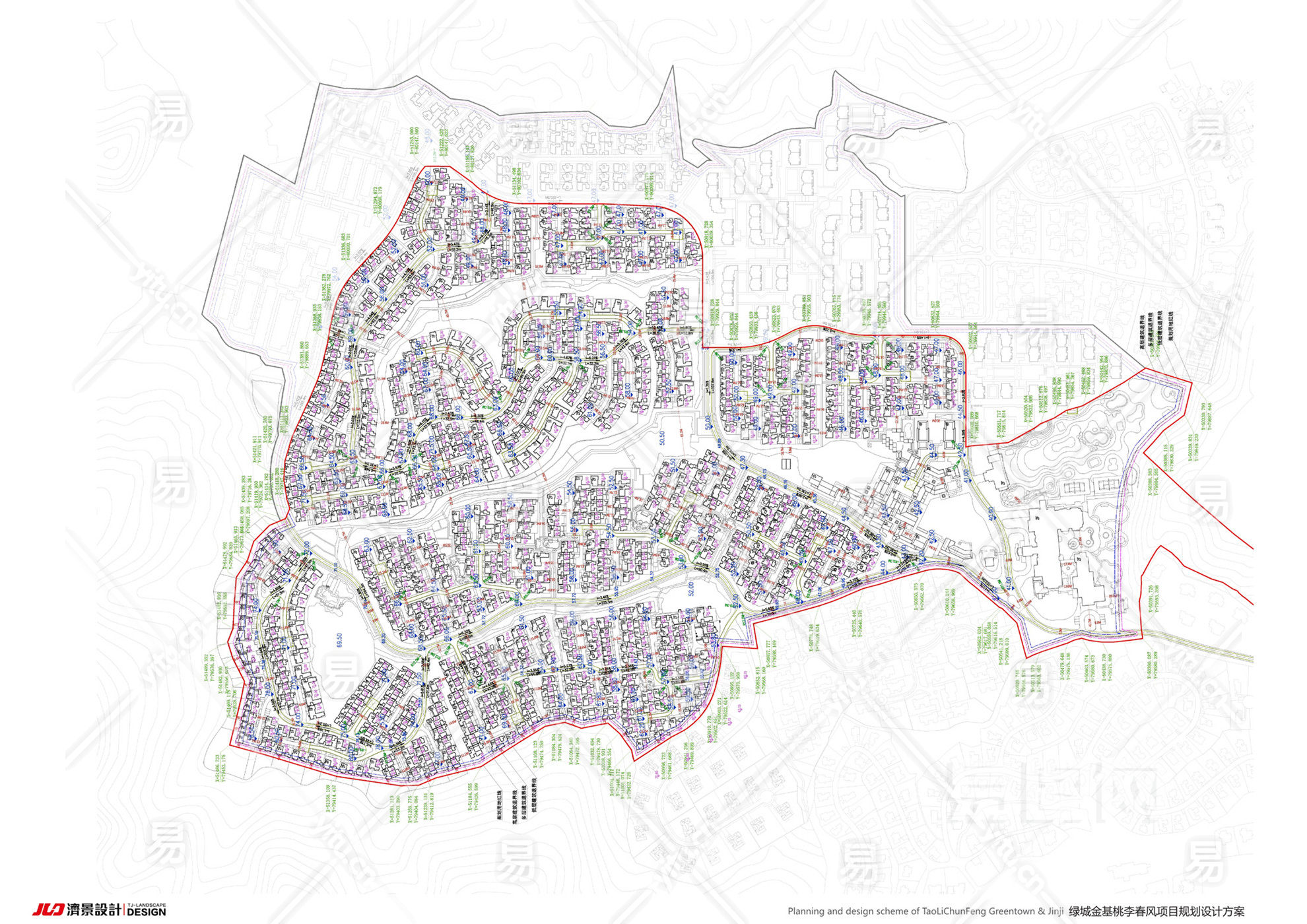
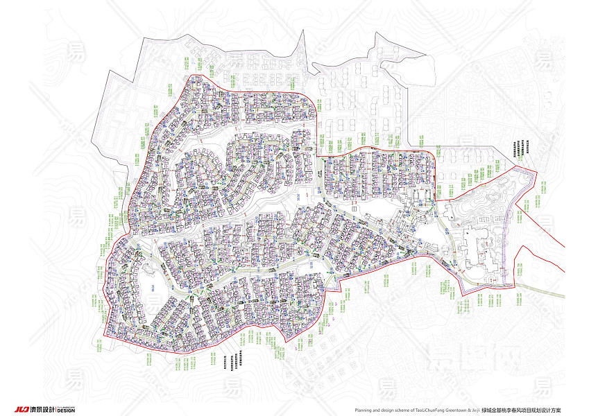
浙江绿城养老公寓住宅建筑规划方案

收藏 ()
ID:7375
文  件  格  式PDF(110)页 大        小142.40MB 设计师 / 机构未知 上  传  时  间20241203
24 图币
VIP专享价 0图币
友情链接 热门模型 免费模型