yituLogo
当前的位置:首页 > 文本 > 建筑文本 > 商业建筑 > 民宿酒店与度假村毓舍规划设计PPT规划方案

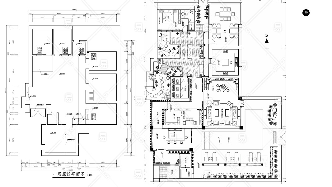
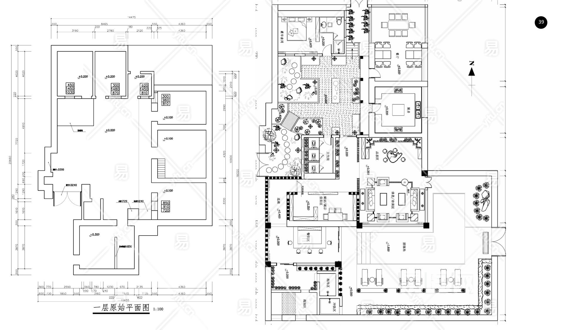
民宿酒店与度假村毓舍规划设计PPT规划方案

收藏 ()
ID:6741
文  件  格  式PPT/PDF(未知)页 大        小52.57MB 设计师 / 机构未知 上  传  时  间20241202
24 图币
VIP专享价 0图币
友情链接 热门模型 免费模型