yituLogo
当前的位置:首页 > 文本 > 建筑文本 > 商业建筑 > 长临河度假酒店建筑设计文本

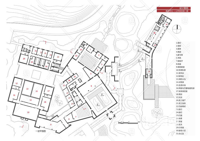
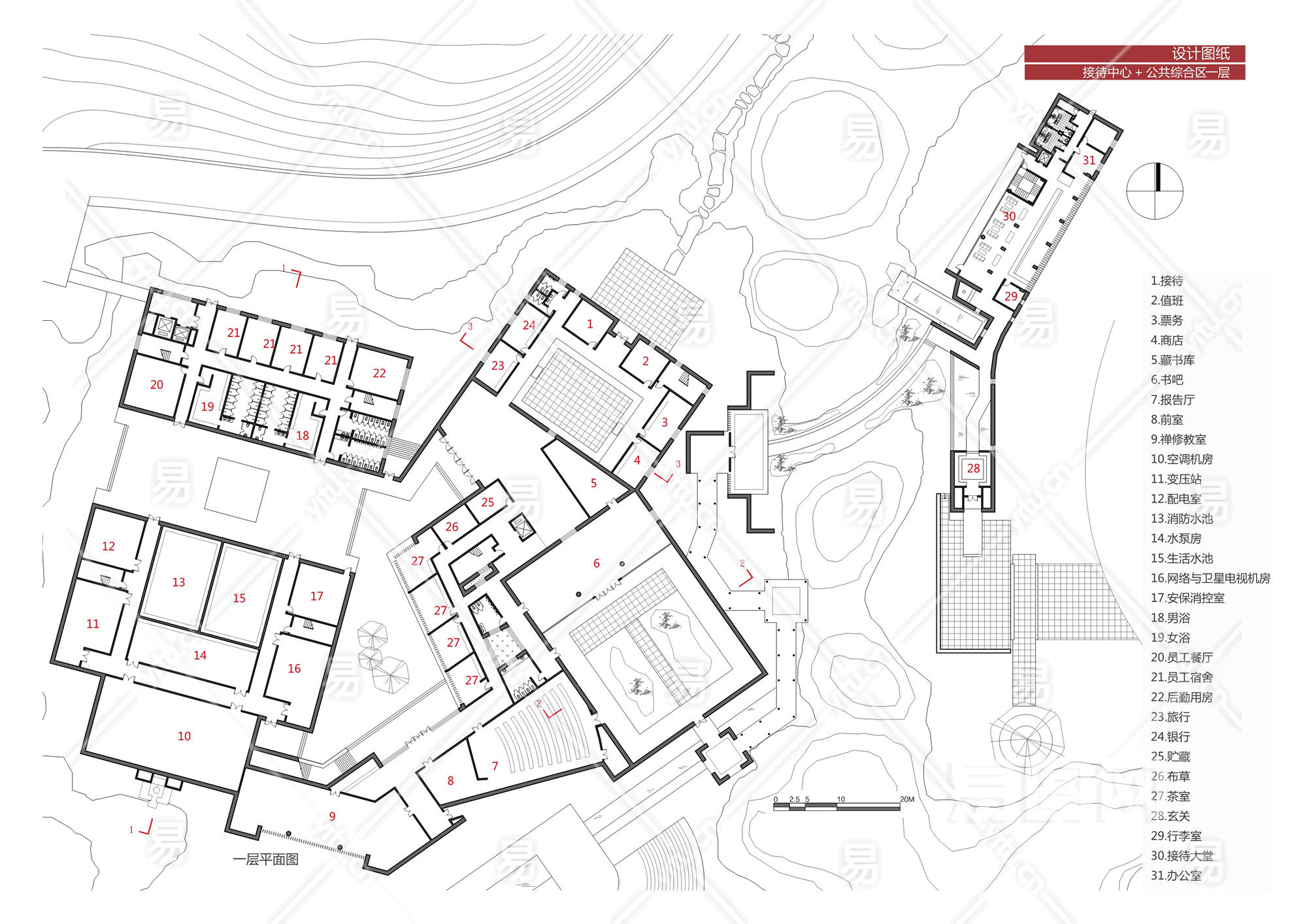
长临河度假酒店建筑设计文本

收藏 ()
ID:6724
文  件  格  式PDF(19)页 大        小40.06MB 设计师 / 机构未知 上  传  时  间20241202
24 图币
VIP专享价 0图币
友情链接 热门模型 免费模型