yituLogo
当前的位置:首页 > 文本 > 硬装方案文本 > 商业空间 > 南京片区公司雨花地块展示中心PPT设计方案

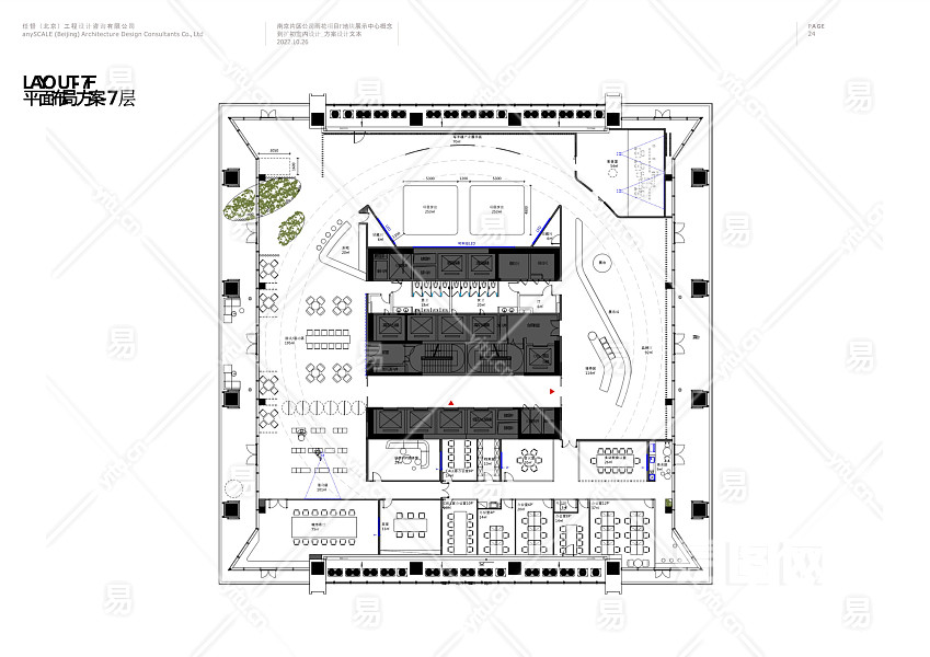
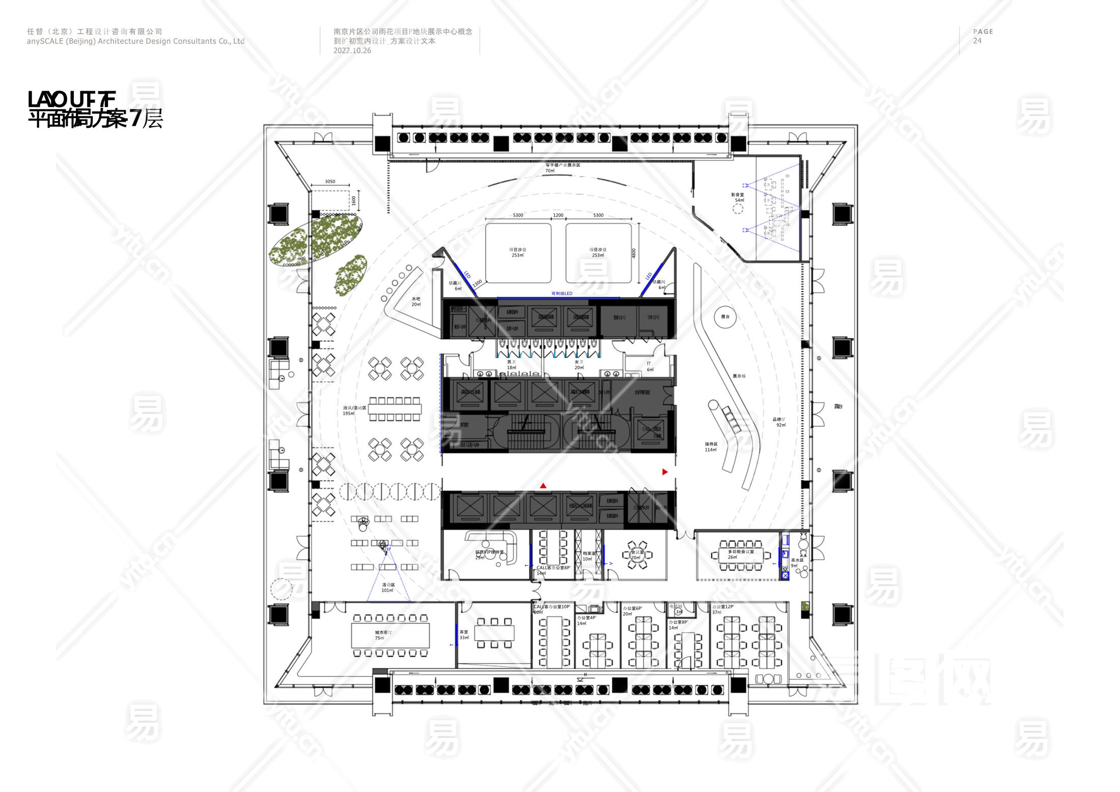
南京片区公司雨花地块展示中心PPT设计方案

收藏 ()
ID:5448
文  件  格  式PPTX(85)页 大        小150.10MB 设计师 / 机构未知 上  传  时  间20241128
24 图币
VIP专享价 0图币
友情链接 热门模型 免费模型