yituLogo
当前的位置:首页 > 文本 > 硬装方案文本 > 售楼处 > 销售南通通州春溪集侘寂风PPT设计方案

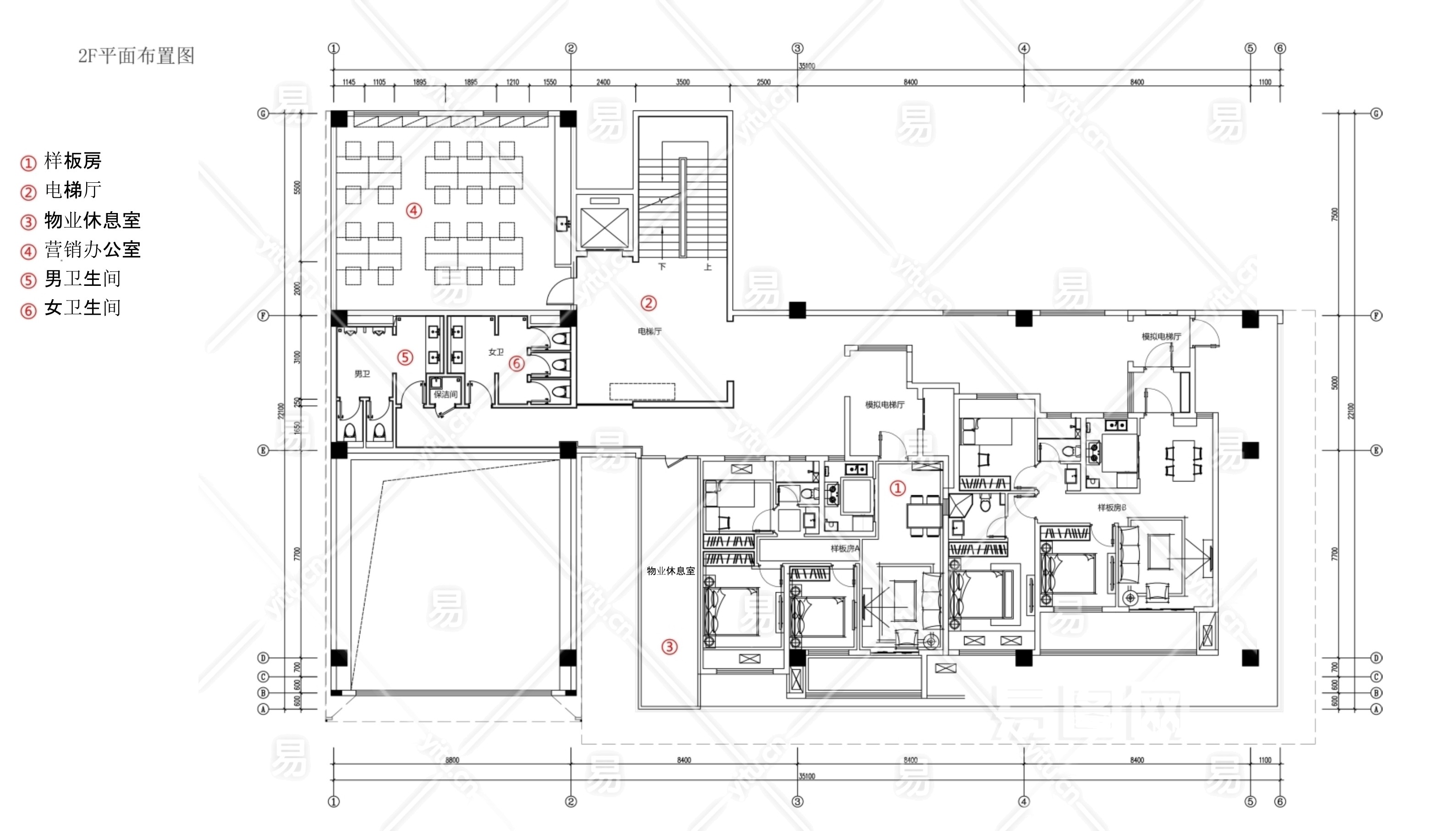
销售南通通州春溪集侘寂风PPT设计方案

收藏 ()
ID:4937
文  件  格  式PPTX(33)页 大        小14.06MB 设计师 / 机构未知 上  传  时  间20241126
24 图币
VIP专享价 0图币
友情链接 热门模型 免费模型