yituLogo
当前的位置:首页 > 文本 > 硬装方案文本 > 样板间 > 李益中设计·温州滨江样板房深化设计方案PPPT

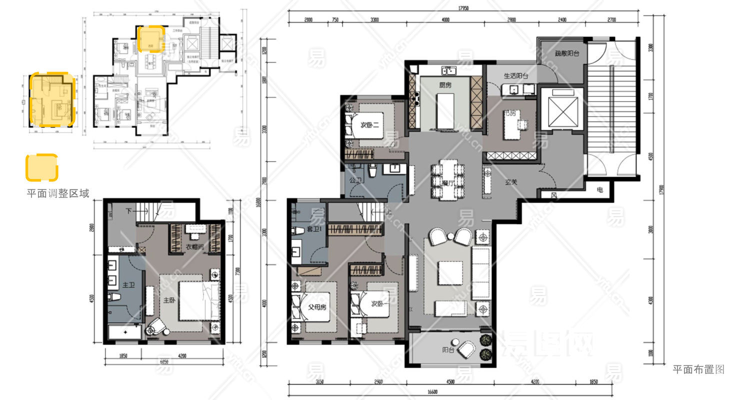
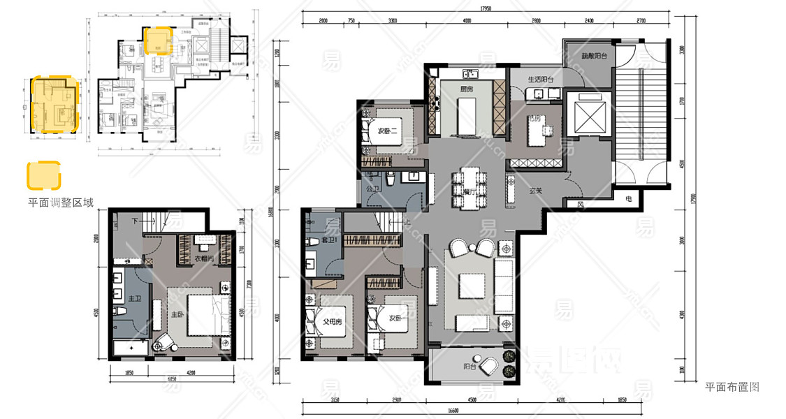
李益中设计·温州滨江样板房深化设计方案PPPT

收藏 ()
ID:3787
文  件  格  式PPTX(61)页 大        小19.71MB 设计师 / 机构李益中 上  传  时  间20241123
24 图币
VIP专享价 0图币
友情链接 热门模型 免费模型