yituLogo
当前的位置:首页 > 文本 > 景观文本 > 庭院景观 > 欧式别墅售楼处景观细节施工扩初设计方案

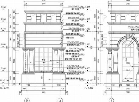
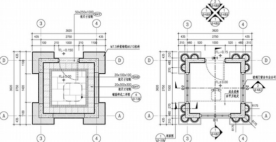
欧式别墅售楼处景观细节施工扩初设计方案

收藏 ()
ID:1304
文  件  格  式jpg 大        小13.00MB 设计师 / 机构yitu 上  传  时  间20191017
30 图币
VIP专享价 0图币
友情链接 热门模型 免费模型