yituLogo
当前的位置:首页 > 室内CAD图纸 > cad > 建筑方案设计 > 居住建筑图纸 > 中式风格四合院平立面图施工图CAD图纸下载

图纸介绍

            空间划分:成套居住建筑                                                                                    图纸深度 :施工图

           类型:合院                                                                                                        图纸格式:DWG

资料为:中式风格合院平立面图施工图

资料内容包括:全套施工图、平面图、立面图等。空间设置合理规范,具有较高的参考价值,可作为参考学习的模板,供设计师、师下载参考。

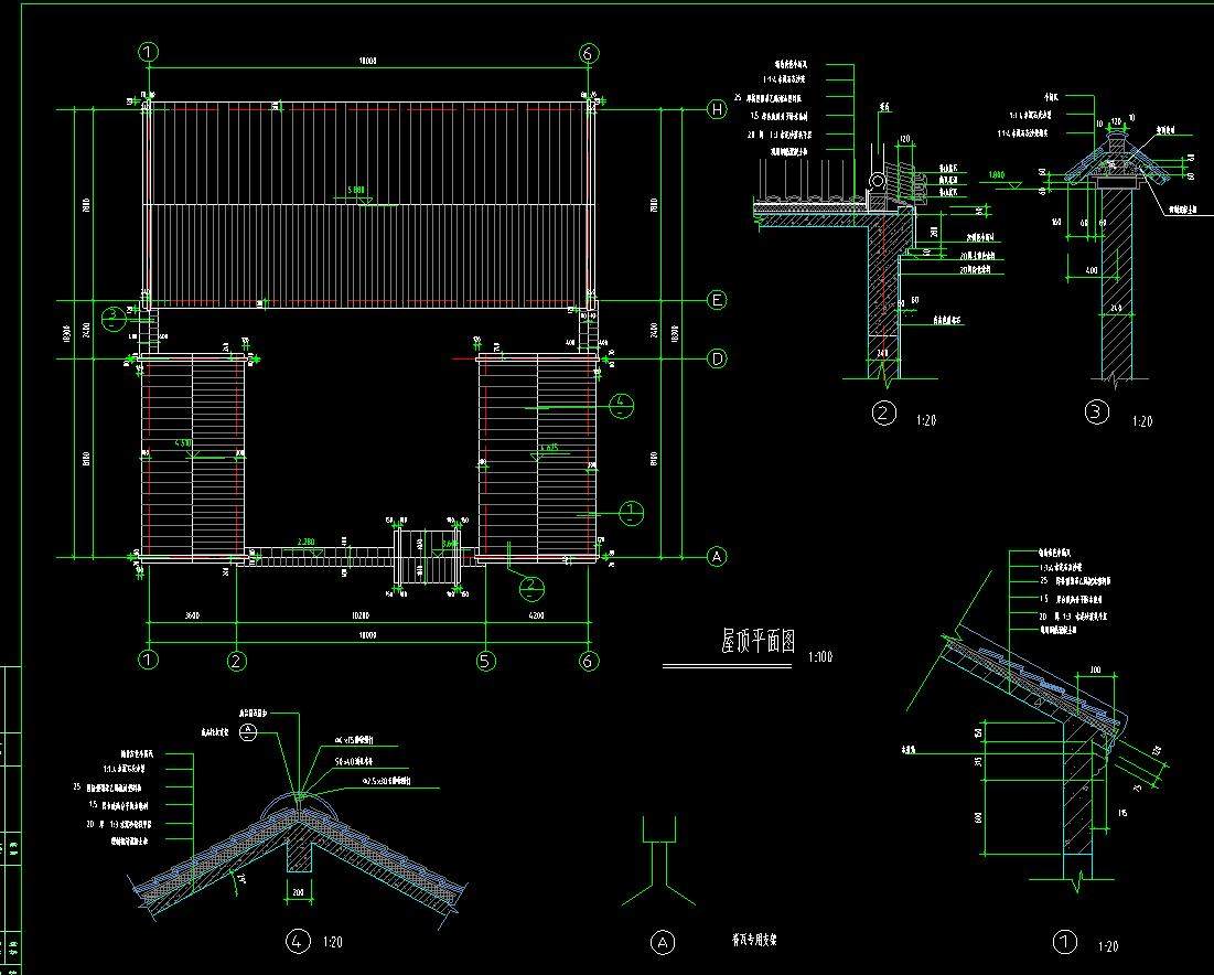
部分图纸展示如下:

QQ截图20220811094242.jpg

 

平面

 

QQ截图20220811094247.jpg

 

平面

 

QQ截图20220811094247.jpg

 

平面

 

QQ截图20220811094254.jpg /></p>
<p style= 

平面

 

缩略图.jpg

 

缩略图

中式风格四合院平立面图施工图CAD图纸下载

ID:94898
软     件:sketchup 大     小:4.10MB 上 传 时 间:20220811 消 耗 积 分:10
  • 收藏 ()
  • 评论 ()
  • ⚠图纸报错

qianqian 普通会员

关注
  • 户外垃圾桶
  • 户外垃圾桶
  • 户外垃圾桶
图纸使用权利说明:

会员在本站下载的原创CAD图库后,只拥有CAD图库的使用权,著作权归原作者及易图网所有。未经合法授权,会员不得以任何形式发布、传播、复制、转售该CAD图库。特别地,不得擅自以易图网名义或使用"易图"、"易图网"(本站注册商标)名称发布、复制、转售所下载的CAD图库,由此给本站造成损害的,本站将依法追究其相关法律责任。

友情链接 热门模型 免费模型