yituLogo
当前的位置:首页 > 室内CAD图纸 > cad > 机电设备 > 建筑电气施工图 > 环保局办公大楼电气施工图CAD图纸

图纸介绍

            空间划分:成套机电设备                                                                                   图纸深度 :施工图

            类型:建筑电气                                                                                                  图纸格式:DWG

资料为:环保局办公大电气施工图

资料内容包括:全套施工图、二层照明图、弱电平面图、一层弱电图、一层照明平面图、照明平面图等。空间设置合理规范,具有较高的参考价值,可作为参考学习的模板,供设计师、师下载参考。

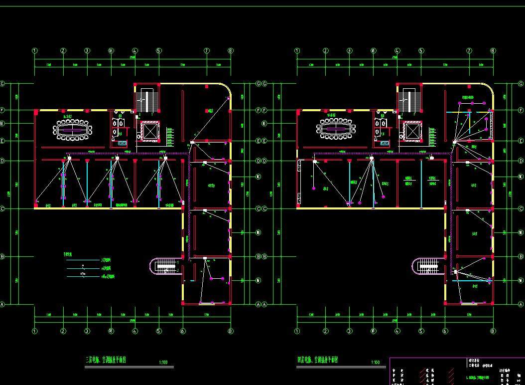
部分图纸展示如下:

电气图.jpg

 

电气图

 

电气系统图.jpg

 

电气系统图

 

<a href=https://www.yitu.cn/sketchup/kongdiaofengshan/index.html target=_blank class=infotextkey>空调</a>、<a href=https://www.yitu.cn/sketchup/diannao/index.html target=_blank class=infotextkey><a href=https://www.yitu.cn/su/7109.html target=_blank class=infotextkey>电脑</a></a><a href=https://www.yitu.cn/su/7656.html target=_blank class=infotextkey>插座</a>图.jpg

 

空调电脑插座

 

<a href=https://www.yitu.cn/sketchup/kongdiaofengshan/index.html target=_blank class=infotextkey>空调</a><a href=https://www.yitu.cn/su/7656.html target=_blank class=infotextkey>插座</a>图.jpg

 

空调插座

 

照明<a href=https://www.yitu.cn/su/7392.html target=_blank class=infotextkey>平面</a>图.jpg

 

照明平面

 

缩略图.jpg

 

缩略图

环保局办公大楼电气施工图CAD图纸

ID:94516
软     件:sketchup 大     小:1.80MB 上 传 时 间:20220802 消 耗 积 分:10
  • 收藏 ()
  • 评论 ()
  • ⚠图纸报错

qianqian 普通会员

关注
  • 户外垃圾桶
  • 户外垃圾桶
  • 户外垃圾桶
图纸使用权利说明:

会员在本站下载的原创CAD图库后,只拥有CAD图库的使用权,著作权归原作者及易图网所有。未经合法授权,会员不得以任何形式发布、传播、复制、转售该CAD图库。特别地,不得擅自以易图网名义或使用"易图"、"易图网"(本站注册商标)名称发布、复制、转售所下载的CAD图库,由此给本站造成损害的,本站将依法追究其相关法律责任。

友情链接 热门模型 免费模型