yituLogo
当前的位置:首页 > 室内CAD图纸 > cad > 建筑方案设计 > 教育建筑图纸 > 华中农业大学人文馆社科楼,大学建筑工程图纸下载

图纸介绍

               空间划分:成套教学                                                                                   图纸深度:施工图

               建筑类型:大学建筑                                                                                        图纸格式:JPG

               结构形式:混凝土                                                                                            设计风格:现代

资料为:华中农业大学文馆社科,内附设计说明

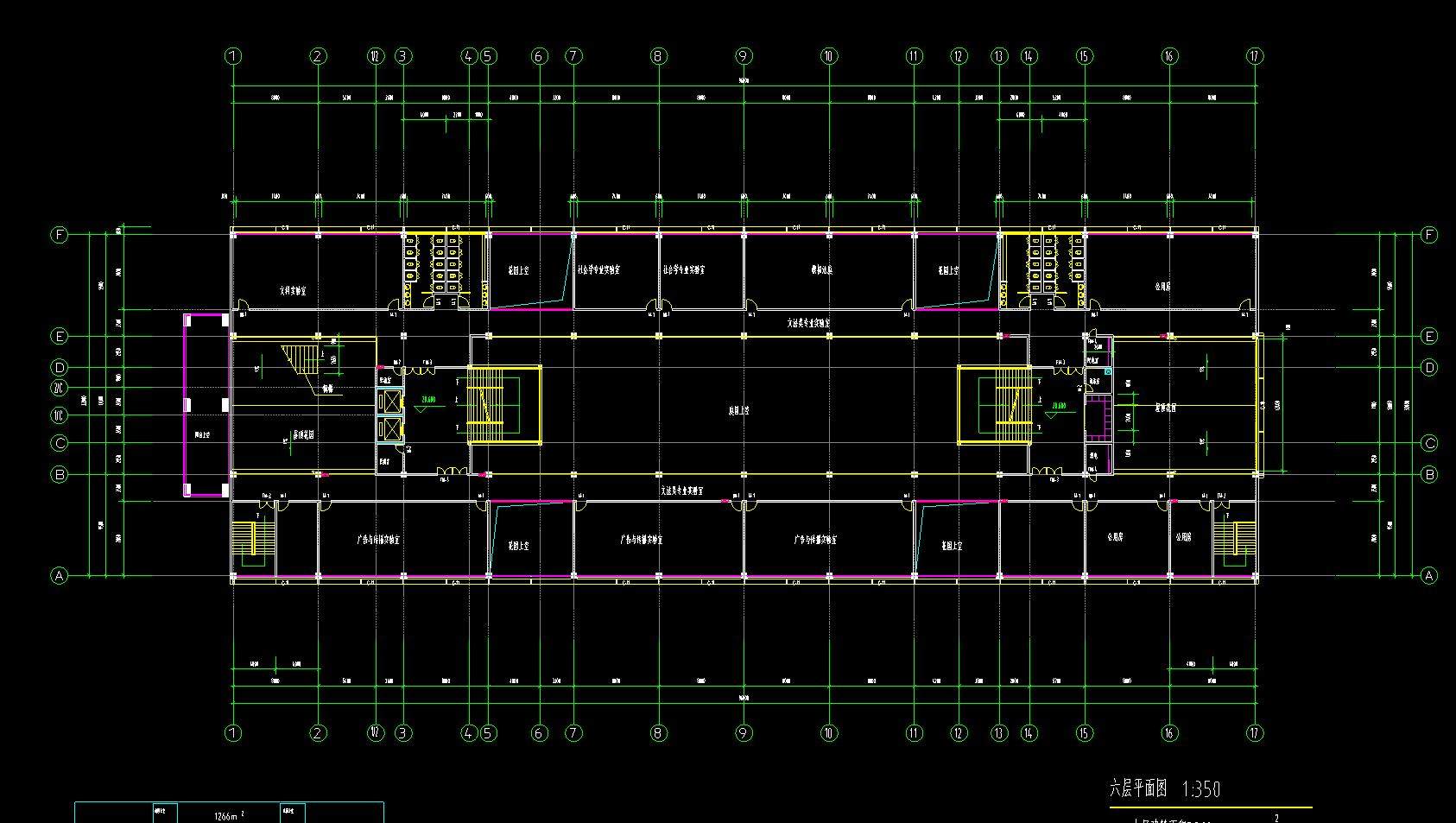
资料内容包括:全套华中农业大学文馆社科,里面包含立面图,六层平面图,剖面图,三层平面图、四层平面图,首层平面图、二层平面图,五层平面图,总平面图等。该图纸制作详细规范,文字标注统一,细节详尽丰富,内容详实,尺寸大小合理,具有很高的参考价值,可以作为参考学习的模板,供设计师、建筑师下载参考。

部分图纸展示:

六层<a href=https://www.yitu.cn/su/7392.html target=_blank class=infotextkey>平面</a>图.jpg

 

六层平面

 

剖面图.jpg

 

剖面图

 

三层<a href=https://www.yitu.cn/su/7392.html target=_blank class=infotextkey>平面</a>图、四层<a href=https://www.yitu.cn/su/7392.html target=_blank class=infotextkey>平面</a>图.jpg

 

三层平面图、四层平面

 

首层<a href=https://www.yitu.cn/su/7392.html target=_blank class=infotextkey>平面</a>图、二层<a href=https://www.yitu.cn/su/7392.html target=_blank class=infotextkey>平面</a>图.jpg

 

首层平面图、二层平面

 

五层<a href=https://www.yitu.cn/su/7392.html target=_blank class=infotextkey>平面</a>图.jpg

 

五层平面

总<a href=https://www.yitu.cn/su/7392.html target=_blank class=infotextkey>平面</a>图.jpg

 

平面

华中农业大学人文馆社科楼,大学建筑工程图纸下载

ID:90946
软     件:sketchup 大     小:3.30MB 上 传 时 间:20210126 消 耗 积 分:0
  • 收藏 ()
  • 评论 ()
  • ⚠图纸报错

qianqian 普通会员

关注
  • 户外垃圾桶
  • 户外垃圾桶
  • 户外垃圾桶
图纸使用权利说明:

会员在本站下载的原创CAD图库后,只拥有CAD图库的使用权,著作权归原作者及易图网所有。未经合法授权,会员不得以任何形式发布、传播、复制、转售该CAD图库。特别地,不得擅自以易图网名义或使用"易图"、"易图网"(本站注册商标)名称发布、复制、转售所下载的CAD图库,由此给本站造成损害的,本站将依法追究其相关法律责任。

友情链接 热门模型 免费模型