yituLogo
当前的位置:首页 > 室内CAD图纸 > cad > 工装图纸 > 专卖店 > 汽车销售服务中心CAD图纸,汽车销售服务中心CAD施工图下载

图纸介绍

         空间划分:成套汽车销售中心                          图纸深度:施工图

        功能类型:汽车销售中心                                  设计风格:现代风格

        图片格式:JPG

     本资料为:汽车销售中心全套CAD施工图,内附详细CAD施工图

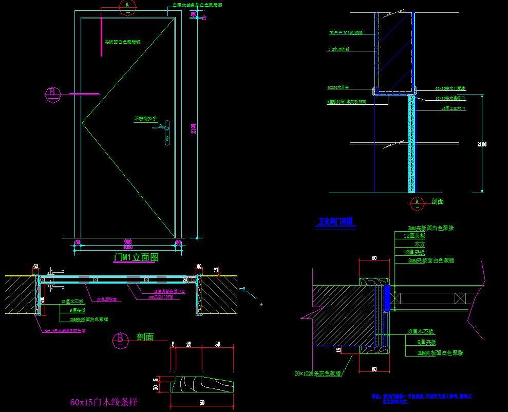
     资料内容包括:白木线条大样图、二层平面布置图图纸、共享大厅立面图图纸、共享大厅铝板分隔图、经理办公室造型节点大样图纸、培训室天图纸、培训师天造型图纸、一层平面尺寸图纸、一层天布置图纸、总平面图纸、节点大样详图、卫生间立面图图纸等等。图纸中无错漏碰缺,具有较高的参考价值,可供下载参考。

      部分图纸展示如下:

共享<a href=https://www.yitu.cn/su/7996.html target=_blank class=infotextkey>大厅</a>天<a href=https://www.yitu.cn/sketchup/huayi/index.html target=_blank class=infotextkey>花</a>铝板分隔图.jpg

 

铝板分格图

 

经理室天<a href=https://www.yitu.cn/sketchup/huayi/index.html target=_blank class=infotextkey>花</a>造型节点.jpg

 

造型图

 

培训室天<a href=https://www.yitu.cn/sketchup/huayi/index.html target=_blank class=infotextkey>花</a>图.jpg

 

培训室天

 

培训室天<a href=https://www.yitu.cn/sketchup/huayi/index.html target=_blank class=infotextkey>花</a>造型图.jpg

 

培训室天造型图

 

一层<a href=https://www.yitu.cn/su/7392.html target=_blank class=infotextkey>平面</a>尺寸.jpg一层<a href=https://www.yitu.cn/su/7392.html target=_blank class=infotextkey>平面</a>尺寸.jpg

 

一层平面尺寸图

 

一层天<a href=https://www.yitu.cn/sketchup/huayi/index.html target=_blank class=infotextkey>花</a>布置.jpg

 

一层天布置图

 

 

汽车销售服务中心CAD图纸,汽车销售服务中心CAD施工图下载

ID:24437
软     件:sketchup 大     小:1.80MB 上 传 时 间:20200618 消 耗 积 分:30
  • 收藏 ()
  • 评论 ()
  • ⚠图纸报错

huangyuzhen 普通会员

关注
  • 现代风格别墅su模型,别墅sketchup模型下载
  • 现代简约别墅草图大师模型,别墅sketchup模型下载
  • 现代简约别墅su模型,别墅sketchup模型下载
SU模型、3D模型、贴图、材质、CAD施工图素材:

su模型,su素材库,3d模型,3d模型库,3d模型下载,3d模型素材,3dmax模型免费下载,cad施工图纸,3d材质贴图,沙发SU模型,椅凳SU模型,柜类SU模型,厨卫SU模型,3D沙发模型,3D陈设饰品,3D柜类模型,3D家装空间,家装CAD图纸,CAD图库,CAD节点详图,橱柜衣柜CAD图纸,CAD施工图,居住建筑效果图,工业建筑效果图,公共建筑效果图

友情链接 热门模型 免费模型