yituLogo
当前的位置:首页 > 室内CAD图纸 > cad > 景观园林 > 园林 > 广州某休闲区景观桥施工图全套图纸

图纸介绍

 文件格式:pdf                          文件大小:4.40MB

图纸数量:53                            设计类别:施工图

貌:绿                         绿类型:园林绿

设计风格:现代风格               图纸格式:JPG

内容简介

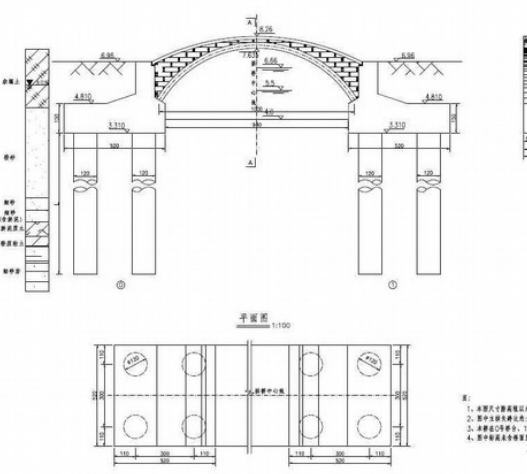
某休闲小区景观施工图全套图纸。加强对广州某小区的基础设施建设,完善基础设施体系,采用现代的设计风格,加强对景观的细部设计。从平面图、型布置图、台构造图、台身钢筋图、承台钢筋图、垫梁与立柱构造图等入手设计,凸显景观特点。

 

广州某休闲区<a href=https://www.yitu.cn/sketchup/jingguanqiao/index.html target=_blank class=infotextkey><a href=https://www.yitu.cn/su/7497.html target=_blank class=infotextkey>景观<a href=https://www.yitu.cn/su/8137.html target=_blank class=infotextkey>桥</a></a></a>施工图全套<a href=https://www.yitu.cn/su/7937.html target=_blank class=infotextkey>图纸</a>

 

1

 

 
2

 

 
3

 

 
4

广州某休闲区景观桥施工图全套图纸

ID:16007
软     件:sketchup 大     小:4.40MB 上 传 时 间:20191024 消 耗 积 分:30
  • 收藏 ()
  • 评论 ()
  • ⚠图纸报错

strawberry 普通会员

UI社UI社UI社UI社UI社UI社UI社UI社UI社UI社UI社UI社UI社
关注
SU模型、3D模型、贴图、材质、CAD施工图素材:

su模型,su素材库,3d模型,3d模型库,3d模型下载,3d模型素材,3dmax模型免费下载,cad施工图纸,3d材质贴图,沙发SU模型,椅凳SU模型,柜类SU模型,厨卫SU模型,3D沙发模型,3D陈设饰品,3D柜类模型,3D家装空间,家装CAD图纸,CAD图库,CAD节点详图,橱柜衣柜CAD图纸,CAD施工图,居住建筑效果图,工业建筑效果图,公共建筑效果图

友情链接 热门模型 免费模型