yituLogo
当前的位置:首页 > 室内CAD图纸 > cad > 景观园林 > 园林 > 园林古建牌楼牌坊图纸汇总集

图纸介绍

 文件格式:dwg                                      文件大小:23.26MB

貌:绿                                      绿类型:园林绿

设计风格:现代风格                             图纸格式:JPG

内容简介

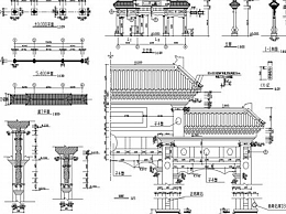
园林古建牌牌坊图纸汇总集。采用现代的设计风格,对多套古建牌坊、仿古建筑详图进行设计。根据各特色,汇总各种园林古建牌、牌坊施工图纸。包含平面图、立面图、剖面图、基础大样图等供参考设计

 

园林古建牌<a href=https://www.yitu.cn/su/8159.html target=_blank class=infotextkey>楼</a>牌坊<a href=https://www.yitu.cn/su/7937.html target=_blank class=infotextkey>图纸</a>汇总集
 
效果图

 

 

牌坊施工图

 

牌坊施工图

 

牌坊施工图

 

牌坊施工图

 

<a href=https://www.yitu.cn/su/7057.html target=_blank class=infotextkey>江南风</a>格牌坊施工<a href=https://www.yitu.cn/su/7937.html target=_blank class=infotextkey>图纸</a>

 

江南风格牌坊施工图纸

 

古牌坊

 

古牌坊

 

牌坊施工图

 

牌坊施工图

 

牌坊施工图

 

牌坊施工图

 

牌坊正立面图

 

牌坊正立面图

园林古建牌楼牌坊图纸汇总集

ID:15957
软     件:sketchup 大     小:23.30MB 上 传 时 间:20191024 消 耗 积 分:30
  • 收藏 ()
  • 评论 ()
  • ⚠图纸报错

strawberry 普通会员

UI社UI社UI社UI社UI社UI社UI社UI社UI社UI社UI社UI社UI社
关注
SU模型、3D模型、贴图、材质、CAD施工图素材:

su模型,su素材库,3d模型,3d模型库,3d模型下载,3d模型素材,3dmax模型免费下载,cad施工图纸,3d材质贴图,沙发SU模型,椅凳SU模型,柜类SU模型,厨卫SU模型,3D沙发模型,3D陈设饰品,3D柜类模型,3D家装空间,家装CAD图纸,CAD图库,CAD节点详图,橱柜衣柜CAD图纸,CAD施工图,居住建筑效果图,工业建筑效果图,公共建筑效果图

友情链接 热门模型 免费模型