yituLogo
当前的位置:首页 > 室内CAD图纸 > cad > 景观园林 > 园林 > 特色园形亭子设计详图

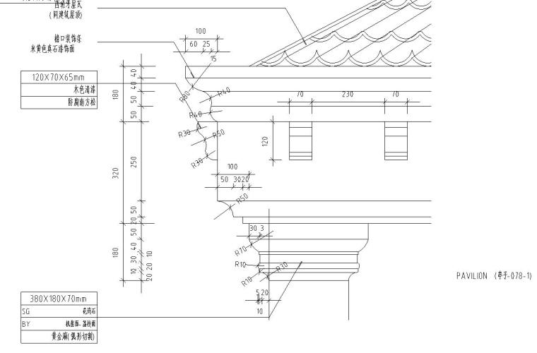
图纸介绍

 文件格式:dwg                               文件大小:583.55KB

使用群体:大众,儿童                      图纸深度 :施工图

图纸格式:CAD2000                       图纸张数:30张

景观设施:•廊•

内容简介:

特图精细严谨,包含中式、欧式、意式等多种风格的子施工图,适用范围广。采用现代的设计风格,对园林绿进行初步设计,对•廊•架进一步设计,完善基础设施建设,使园林景观更好发展。

 

01 <a href=https://www.yitu.cn/su/7392.html target=_blank class=infotextkey>平面</a>图

 

01 平面

 

大样详图

 

大样详图

 

节点详图

 

节点详图

 

立面图

 

立面图

 

剖面图

 

剖面图

特色园形亭子设计详图

ID:15877
软     件:sketchup 大     小:0.40MB 上 传 时 间:20191024 消 耗 积 分:30
  • 收藏 ()
  • 评论 ()
  • ⚠图纸报错

strawberry 普通会员

UI社UI社UI社UI社UI社UI社UI社UI社UI社UI社UI社UI社UI社
关注
SU模型、3D模型、贴图、材质、CAD施工图素材:

su模型,su素材库,3d模型,3d模型库,3d模型下载,3d模型素材,3dmax模型免费下载,cad施工图纸,3d材质贴图,沙发SU模型,椅凳SU模型,柜类SU模型,厨卫SU模型,3D沙发模型,3D陈设饰品,3D柜类模型,3D家装空间,家装CAD图纸,CAD图库,CAD节点详图,橱柜衣柜CAD图纸,CAD施工图,居住建筑效果图,工业建筑效果图,公共建筑效果图

友情链接 热门模型 免费模型