yituLogo
当前的位置:首页 > 室内CAD图纸 > cad > 景观园林 > 园林 > 高端双边廊架施工图

图纸介绍

 文件格式:zip                                       文件大小:2.28MB

貌:绿                                    绿类型:园林绿

设计风格:现代风格                          图纸格式:JPG

内容简介:

景观细部施工图|高端双边廊架施工图。采用现代的设计风格,对高端双边廊架进行初步设计,使其分布更合理,功能分区更明确,促进景观细部的施工,完善其基础设施建设,提高植被覆盖率,凸显高端双边廊架的特点。

 

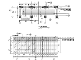
01 高端双边<a href=https://www.yitu.cn/su/7784.html target=_blank class=infotextkey>廊架</a>(文科标准)

 

高端双边廊架

 

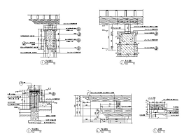
高端双边<a href=https://www.yitu.cn/su/7784.html target=_blank class=infotextkey>廊架</a>(文科标准)节点大样图

 

高端双边廊架节点大样图

 

高端双边<a href=https://www.yitu.cn/su/7784.html target=_blank class=infotextkey>廊架</a>(文科标准)节点大样图一

 

高端双边廊架节点大样图一

 

高端双边<a href=https://www.yitu.cn/su/7784.html target=_blank class=infotextkey>廊架</a>(文科标准)节点大样图二

 

高端双边廊架节点大样图二

 

高端双边<a href=https://www.yitu.cn/su/7784.html target=_blank class=infotextkey>廊架</a>(文科标准)结构<a href=https://www.yitu.cn/su/7392.html target=_blank class=infotextkey>平面</a>图

 

高端双边廊架结构平面

 

高端双边<a href=https://www.yitu.cn/su/7784.html target=_blank class=infotextkey>廊架</a>(文科标准)结构图一

 

高端双边廊架结构图一

 

高端双边<a href=https://www.yitu.cn/su/7784.html target=_blank class=infotextkey>廊架</a>(文科标准)局部立面图

 

高端双边廊架局部立面图

 

高端双边<a href=https://www.yitu.cn/su/7784.html target=_blank class=infotextkey>廊架</a>(文科标准)剖面图

 

高端双边廊架剖面图

 

高端双边<a href=https://www.yitu.cn/su/7784.html target=_blank class=infotextkey>廊架</a>(文科标准)详图一

 

高端双边廊架详图一

 

高端双边<a href=https://www.yitu.cn/su/7784.html target=_blank class=infotextkey>廊架</a>(文科标准)详图二

 

高端双边廊架详图二

高端双边廊架施工图

ID:15435
软     件:sketchup 大     小:2.30MB 上 传 时 间:20191022 消 耗 积 分:30
  • 收藏 ()
  • 评论 ()
  • ⚠图纸报错

strawberry 普通会员

UI社UI社UI社UI社UI社UI社UI社UI社UI社UI社UI社UI社UI社
关注
SU模型、3D模型、贴图、材质、CAD施工图素材:

su模型,su素材库,3d模型,3d模型库,3d模型下载,3d模型素材,3dmax模型免费下载,cad施工图纸,3d材质贴图,沙发SU模型,椅凳SU模型,柜类SU模型,厨卫SU模型,3D沙发模型,3D陈设饰品,3D柜类模型,3D家装空间,家装CAD图纸,CAD图库,CAD节点详图,橱柜衣柜CAD图纸,CAD施工图,居住建筑效果图,工业建筑效果图,公共建筑效果图

友情链接 热门模型 免费模型