yituLogo
当前的位置:首页 > 室内CAD图纸 > cad > 景观园林 > 园林 > 园林景观小品特色景墙、挡土墙CAD施工图合集

图纸介绍

   文件格式:zip                                 文件大小:27.62MB

  图纸深度 :施工图                          貌:绿

  绿类型:园林绿                       设计风格:现代风格  

  图纸格式:JPG

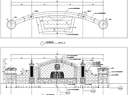
  内容简介:

  园林景观小品特色景墙、挡土墙CAD施工图合集。采用现代的设计风格,对园林景观进行初步设计。共分为特色挡土墙景观设计详图、园林景墙设计详图、景墙设计详图、特色种植景墙设计详图等板块,共78张施工图纸设计体现园林之美。

特色种植挡土墙景观<a href=https://www.yitu.cn/su/7590.html target=_blank class=infotextkey>设计</a>详图

 

  特色种植挡土墙景观设计详图

  

吐<a href=https://www.yitu.cn/su/5628.html target=_blank class=infotextkey><a href=https://yitu.cn/su/5628.html target=_blank class=infotextkey>水</a></a>浮雕墙景观详图

 

  吐浮雕墙景观详图

  

特色<a href=https://www.yitu.cn/sketchup/shuijing/index.html target=_blank class=infotextkey><a href=https://www.yitu.cn/su/5628.html target=_blank class=infotextkey><a href=https://yitu.cn/su/5628.html target=_blank class=infotextkey>水</a></a>景</a><a href=https://www.yitu.cn/su/8008.html target=_blank class=infotextkey>景墙</a><a href=https://www.yitu.cn/su/7590.html target=_blank class=infotextkey>设计</a>详图

 

  特色景墙设计详图

  

特色<a href=https://www.yitu.cn/su/8008.html target=_blank class=infotextkey>景墙</a><a href=https://www.yitu.cn/su/7590.html target=_blank class=infotextkey>设计</a>详图

 

  特色景墙设计详图

  

特色<a href=https://www.yitu.cn/su/8008.html target=_blank class=infotextkey>景墙</a><a href=https://www.yitu.cn/su/7590.html target=_blank class=infotextkey>设计</a>详图

 

  特色景墙设计详图

  

特色<a href=https://www.yitu.cn/su/8008.html target=_blank class=infotextkey>景墙</a><a href=https://www.yitu.cn/su/7590.html target=_blank class=infotextkey>设计</a>详图

 

  特色景墙设计详图

  

特色<a href=https://www.yitu.cn/su/8008.html target=_blank class=infotextkey>景墙</a><a href=https://www.yitu.cn/su/7590.html target=_blank class=infotextkey>设计</a>详图

 

  特色景墙设计详图

  

景观<a href=https://www.yitu.cn/sketchup/shuijing/index.html target=_blank class=infotextkey><a href=https://www.yitu.cn/su/5628.html target=_blank class=infotextkey><a href=https://yitu.cn/su/5628.html target=_blank class=infotextkey>水</a></a>景</a>墙<a href=https://www.yitu.cn/su/7590.html target=_blank class=infotextkey>设计</a>详图

 

  景观景墙设计详图

  

景观挡土墙<a href=https://www.yitu.cn/su/7590.html target=_blank class=infotextkey>设计</a>详图

 

  景观挡土墙设计详图

  

分户隔墙景观<a href=https://www.yitu.cn/su/7590.html target=_blank class=infotextkey>设计</a>详图

 

  分户隔墙景观设计详图

园林景观小品特色景墙、挡土墙CAD施工图合集

ID:15196
软     件:sketchup 大     小:27.60MB 上 传 时 间:20191021 消 耗 积 分:30
  • 收藏 ()
  • 评论 ()
  • ⚠图纸报错

strawberry 普通会员

UI社UI社UI社UI社UI社UI社UI社UI社UI社UI社UI社UI社UI社
关注

上一篇:学校CAD图纸

下一篇:学校CAD图纸

SU模型、3D模型、贴图、材质、CAD施工图素材:

su模型,su素材库,3d模型,3d模型库,3d模型下载,3d模型素材,3dmax模型免费下载,cad施工图纸,3d材质贴图,沙发SU模型,椅凳SU模型,柜类SU模型,厨卫SU模型,3D沙发模型,3D陈设饰品,3D柜类模型,3D家装空间,家装CAD图纸,CAD图库,CAD节点详图,橱柜衣柜CAD图纸,CAD施工图,居住建筑效果图,工业建筑效果图,公共建筑效果图

友情链接 热门模型 免费模型