yituLogo
当前的位置:首页 > 室内CAD图纸 > cad > 工装图纸 > 学校培训 > 幼儿园平面图施工图,幼儿园cad建筑施工图纸下载

图纸介绍

              空间划分:成套幼儿园                                                                                     图纸深度:施工图

              建筑类型:幼儿园                                                                                             图纸格式:JPG

              设计风格:现代

资料为:幼儿园平面图施工图

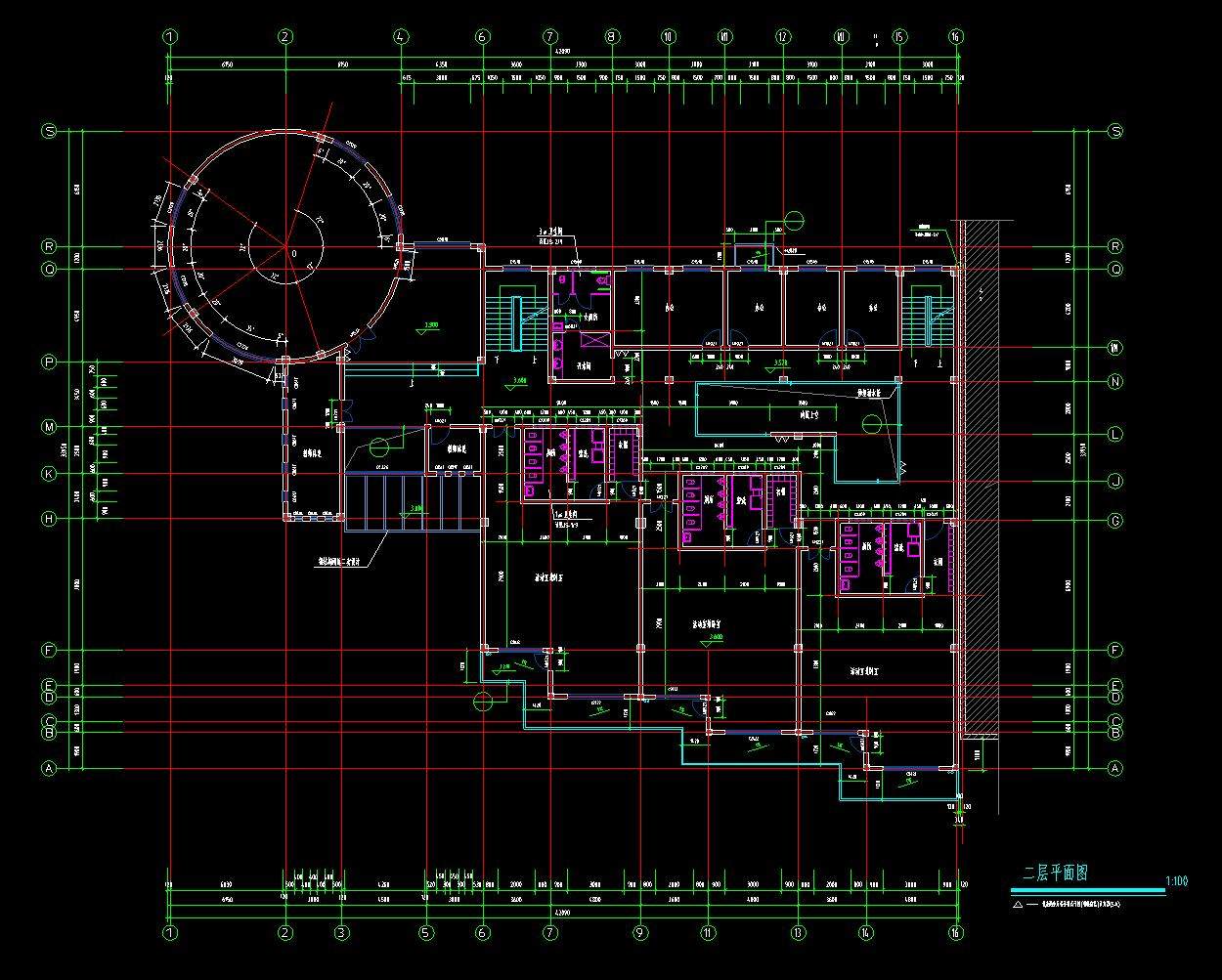
资料内容包括:全套幼儿园平面图施工图,内含二层平面图,节点大样图,梯剖面图,南立面图、北立面图、西立面图,剖面图,三层平面图,屋顶平面图,一层平面图等。该图纸制作详细规范,文字标注统一,细节详尽丰富,内容详实,尺寸大小合理,具有很高的参考价值,可以作为参考学习的模板,供设计师、建筑师下载参考。

部分图纸展示:

节点大样图.jpg

 

节点大样图

 

<a href=https://www.yitu.cn/sketchup/louti/index.html target=_blank class=infotextkey><a href=https://www.yitu.cn/su/6782.html target=_blank class=infotextkey><a href=https://www.yitu.cn/su/8159.html target=_blank class=infotextkey>楼</a>梯</a></a>剖面图.jpg

 

梯剖面图

 

南立面图、北立面图、西立面图.jpg

 

南立面图、北立面图、西立面图

 

剖面图.jpg

 

剖面图

 

三层<a href=https://www.yitu.cn/su/7392.html target=_blank class=infotextkey>平面</a>图.jpg

 

三层平面

 

屋顶<a href=https://www.yitu.cn/su/7392.html target=_blank class=infotextkey>平面</a>图.jpg

 

屋顶平面

 

一层<a href=https://www.yitu.cn/su/7392.html target=_blank class=infotextkey>平面</a>图.jpg

 

一层平面

幼儿园平面图施工图,幼儿园cad建筑施工图纸下载

ID:90804
软     件:sketchup 大     小:1.50MB 上 传 时 间:20210117 消 耗 积 分:0
  • 收藏 ()
  • 评论 ()
  • ⚠图纸报错

qianqian 普通会员

关注
  • 户外垃圾桶
  • 户外垃圾桶
  • 户外垃圾桶
SU模型、3D模型、贴图、材质、CAD施工图素材:

su模型,su素材库,3d模型,3d模型库,3d模型下载,3d模型素材,3dmax模型免费下载,cad施工图纸,3d材质贴图,沙发SU模型,椅凳SU模型,柜类SU模型,厨卫SU模型,3D沙发模型,3D陈设饰品,3D柜类模型,3D家装空间,家装CAD图纸,CAD图库,CAD节点详图,橱柜衣柜CAD图纸,CAD施工图,居住建筑效果图,工业建筑效果图,公共建筑效果图

友情链接 热门模型 免费模型