yituLogo
当前的位置:首页 > 室内CAD图纸 > cad > CAD图库 > 景观 > 喷泉CAD工程图纸下载

图纸介绍

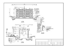
喷泉CAD工程图纸下载,CAD图纸下载,制作完整,简洁易懂,内含喷泉平面立面图、剖面大样图,平面剖面图,喷泉平面铺装材质图,浮雕大样图,泉眼大样图。易图网为您提供下载服务,好看实用。

喷泉CAD工程图纸下载

ID:15053
软     件:sketchup 大     小:3.20MB 上 传 时 间:20190727 消 耗 积 分:30
  • 收藏 ()
  • 评论 ()
  • ⚠图纸报错

xiaoye 普通会员

关注
  • 现代美发沙龙草图大师模型,美发沙龙su模型下载
  • 创意科技展厅草图大师模型,展厅su模型下载
  • 现代理发店美容院草图大师模型,理发店su模型下载
SU模型、3D模型、贴图、材质、CAD施工图素材:

su模型,su素材库,3d模型,3d模型库,3d模型下载,3d模型素材,3dmax模型免费下载,cad施工图纸,3d材质贴图,沙发SU模型,椅凳SU模型,柜类SU模型,厨卫SU模型,3D沙发模型,3D陈设饰品,3D柜类模型,3D家装空间,家装CAD图纸,CAD图库,CAD节点详图,橱柜衣柜CAD图纸,CAD施工图,居住建筑效果图,工业建筑效果图,公共建筑效果图

友情链接 热门模型 免费模型