yituLogo
当前的位置:首页 > 室内CAD图纸 > cad > 建筑方案设计 > 其它建筑图纸 > 仿古3层单檐道学院设计施工图,寺庙CAD施工图下载

图纸介绍

仿古3层单檐道学院设计施工图,寺庙CAD施工图下载内容简介:图纸含有寺庙平面布置图、立面图、节点大样图等,作图规范,内容详实,具有较高的参考价值。

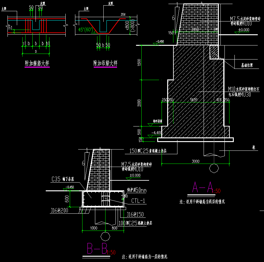
部分图纸展示:
 
大样图 (3).jpg
大样图
大样图 (4).jpg
大样图
断面图 (1).jpg
平面布置图
立面图.jpg
立面图
<a href=https://www.yitu.cn/su/7392.html target=_blank class=infotextkey>平面</a>图.jpg

仿古3层单檐道学院设计施工图,寺庙CAD施工图下载

ID:23284
软     件:sketchup 大     小:9.50MB 上 传 时 间:20200527 消 耗 积 分:30
  • 收藏 ()
  • 评论 ()
  • ⚠图纸报错

zhangjin 普通会员

关注
  • 苏州古典园林怡园su模型,怡园cad建筑模型下载
  • 苏州狮子园建筑模型,古典私家园狮子林模型下载
  • 苏州古典留园建筑模型,苏州古典园林su模型下载
SU模型、3D模型、贴图、材质、CAD施工图素材:

su模型,su素材库,3d模型,3d模型库,3d模型下载,3d模型素材,3dmax模型免费下载,cad施工图纸,3d材质贴图,沙发SU模型,椅凳SU模型,柜类SU模型,厨卫SU模型,3D沙发模型,3D陈设饰品,3D柜类模型,3D家装空间,家装CAD图纸,CAD图库,CAD节点详图,橱柜衣柜CAD图纸,CAD施工图,居住建筑效果图,工业建筑效果图,公共建筑效果图

友情链接 热门模型 免费模型