yituLogo
当前的位置:首页 > 室内CAD图纸 > cad > 建筑方案设计 > 其它建筑图纸 > 小学风雨操场建筑施工图,风雨操场CAD施工图纸下载

图纸介绍

小学风雨操场建筑施工图,风雨操场CAD施工图纸下载内容简介:图纸含有各层平面布置图、立面图、面布置图、开关布置图等,内容详实,尺寸合理,具有较高的参考价值。

部分图纸展示:

QQ截图20191223145807.png

 

立面图

 

QQ截图20191223145821.png

 

立面图

 

QQ截图20191223145900.png

 

小学风雨操场建筑施工图

 

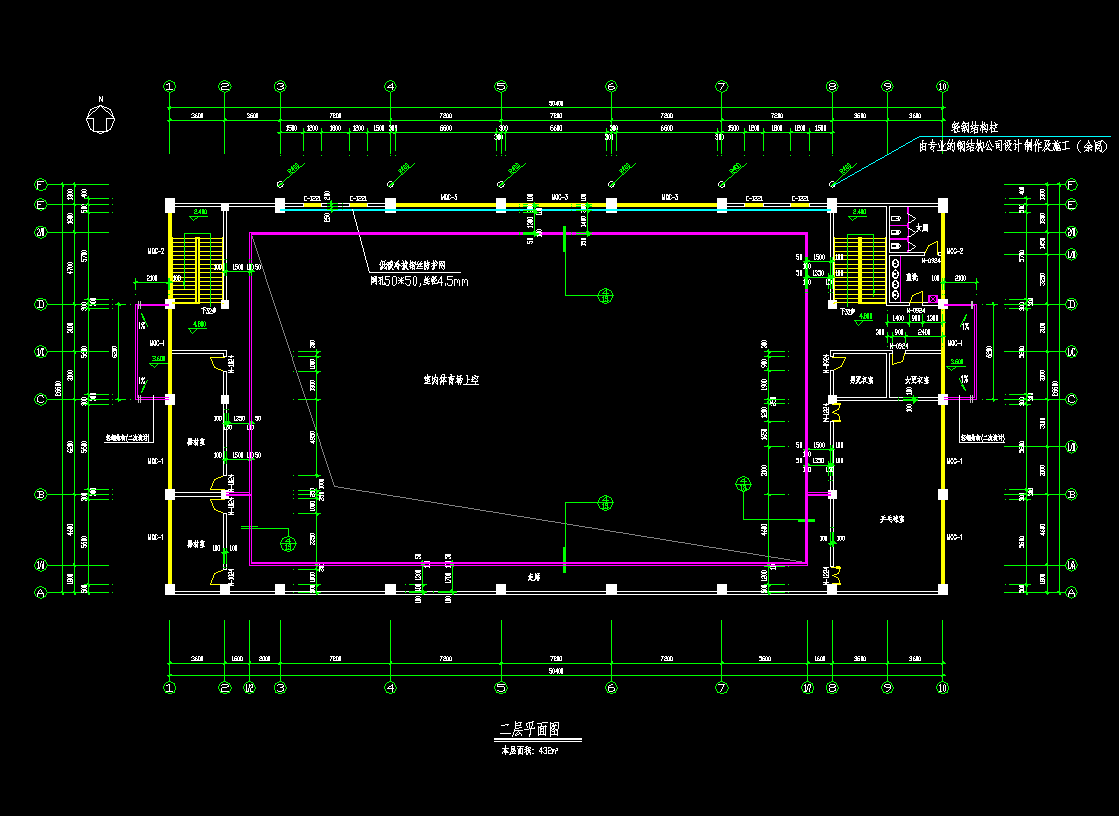
QQ截图20191223145909.png

 

小学风雨操场建筑施工图

 

QQ截图20191223145920.png

 

小学风雨操场建筑施工图

小学风雨操场建筑施工图,风雨操场CAD施工图纸下载

ID:22144
软     件:sketchup 大     小:0.80MB 上 传 时 间:20191223 消 耗 积 分:30
  • 收藏 ()
  • 评论 ()
  • ⚠图纸报错

hufeng 普通会员

关注
  • 现代3D人物草图大师模型,人物SKB文件下载
  • 现代3D人物草图大师模型,人物SKB文件下载
  • 现代3D人物草图大师模型,人物SKB文件下载
SU模型、3D模型、贴图、材质、CAD施工图素材:

su模型,su素材库,3d模型,3d模型库,3d模型下载,3d模型素材,3dmax模型免费下载,cad施工图纸,3d材质贴图,沙发SU模型,椅凳SU模型,柜类SU模型,厨卫SU模型,3D沙发模型,3D陈设饰品,3D柜类模型,3D家装空间,家装CAD图纸,CAD图库,CAD节点详图,橱柜衣柜CAD图纸,CAD施工图,居住建筑效果图,工业建筑效果图,公共建筑效果图

友情链接 热门模型 免费模型