yituLogo
当前的位置:首页 > 室内CAD图纸 > cad > 建筑方案设计 > 其它建筑图纸 > 某五层综合超市建筑施工图,超市建筑CAD施工图纸下载

图纸介绍

 某五层综合超市建筑施工图,超市建筑CAD施工图纸下载内容简介:图纸含有超市平面布置图、立面图、节点大样图等,内容详实,作图规范,具有较高的参考价值。

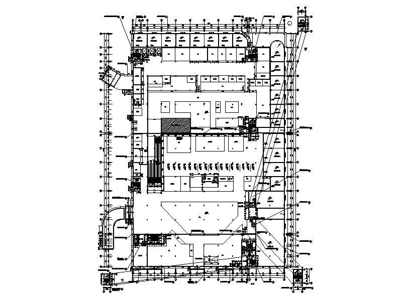
部分图纸展示:

4.jpg

平面布置图

<a href=https://www.yitu.cn/su/7872.html target=_blank class=infotextkey>地</a>下室<a href=https://www.yitu.cn/su/7392.html target=_blank class=infotextkey>平面</a>.jpg

平面布置图

三层<a href=https://www.yitu.cn/su/7392.html target=_blank class=infotextkey>平面</a>图.jpg

平面布置图

某五层综合超市建筑施工图,超市建筑CAD施工图纸下载

ID:21827
软     件:sketchup 大     小:3.60MB 上 传 时 间:20191219 消 耗 积 分:30
  • 收藏 ()
  • 评论 ()
  • ⚠图纸报错

qianqian 普通会员

关注
  • 户外垃圾桶
  • 户外垃圾桶
  • 户外垃圾桶
SU模型、3D模型、贴图、材质、CAD施工图素材:

su模型,su素材库,3d模型,3d模型库,3d模型下载,3d模型素材,3dmax模型免费下载,cad施工图纸,3d材质贴图,沙发SU模型,椅凳SU模型,柜类SU模型,厨卫SU模型,3D沙发模型,3D陈设饰品,3D柜类模型,3D家装空间,家装CAD图纸,CAD图库,CAD节点详图,橱柜衣柜CAD图纸,CAD施工图,居住建筑效果图,工业建筑效果图,公共建筑效果图

友情链接 热门模型 免费模型