yituLogo
当前的位置:首页 > 室内CAD图纸 > cad > 商业空间 > 购物中心 > 大型商业综合体装修施工方案

图纸介绍

空间划分:成套商业                             空间类型:商场

图纸深度:施工图                                项目位置:四川

设计风格:现代风格                             图纸格式:JPG,CAD2000

包含图片:效果图

简介:产品展示特征独具特色别致,特征明显,不但使企业品牌形象越来越个性时尚独特,还将多种多样产品的外在品牌形象,宣传品牌的感召力,影响着品牌的未来发展和延伸。店铺空间设计最主要的是让店铺环境与品牌文化达到完美融合,它的标准全部都是要以顾客的需求和体验为设计基础,重视顾客的体验。

 

 

[成都]远洋太古里大型<a href=https://www.yitu.cn/sketchup/shangyezongheti/index.html target=_blank class=infotextkey>商业综合</a>体建筑CAD施工图/方案/实景合集_1

 

 

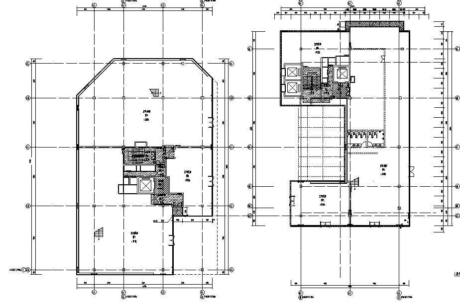
平面布置图

 

 

附件预览图4

 

 

附件预览图

 

 

附件预览图3

 

 

附件预览图

 

 

附件预览图1

 

 

附件预览图

 

 

_c_4refX8Q--ocr-VXw1W_Q_xHgzm39yKEoee9jDBlme_U-qSGuVwN_5FEeHbtJXyGwr6RmNq5gYlShDdjig0fd73h24Vfdyu9G

 

 

实景预览图

 

 

_c_g6Pm7vAR-Yh2WjgLxzZIhbL7alL8yNwoqyxEBmWAunAOg1CaYEnLjUeliN57GGaw4mIescYrD7RLeAncblao_7TXNxBG1FQx

 

 

实景预览图

 

 

_c_ymTNNHg56lS3JFXoDDx7I84RGZJKswtuxzRwthsWacch1DhnDgP97HO3pEDi4_DfnfGlqDJyKIkHYAaR9gCRe8d-jwjCJpcf

 

 

实景预览图

 

大型商业综合体装修施工方案

ID:17121
软     件:sketchup 大     小:682.00MB 上 传 时 间:20191105 消 耗 积 分:30
  • 收藏 ()
  • 评论 ()
  • ⚠图纸报错

wangyiting QQ登陆会员

关注
SU模型、3D模型、贴图、材质、CAD施工图素材:

su模型,su素材库,3d模型,3d模型库,3d模型下载,3d模型素材,3dmax模型免费下载,cad施工图纸,3d材质贴图,沙发SU模型,椅凳SU模型,柜类SU模型,厨卫SU模型,3D沙发模型,3D陈设饰品,3D柜类模型,3D家装空间,家装CAD图纸,CAD图库,CAD节点详图,橱柜衣柜CAD图纸,CAD施工图,居住建筑效果图,工业建筑效果图,公共建筑效果图

友情链接 热门模型 免费模型