SUQQ群
QQ扫一扫
图纸深度:施工图 项目位置:甘肃
设计时间:2018 包含图片:效果图
内容简介:目录表,设计说明及做法表、室内装修材料表、石材干挂详图大样、地面做法大样图、施工图设计说明,建筑电气说明,平面尺寸索引图等,现代商场装修设计越来越注重运用适应时代潮流的装饰设计新理念,突出商场经营的主体性和个性,满足客人在快节奏的社会中追求完善舒适的心理需求。因此装饰设计要体现“完美舒适即是豪华”这一新理念。

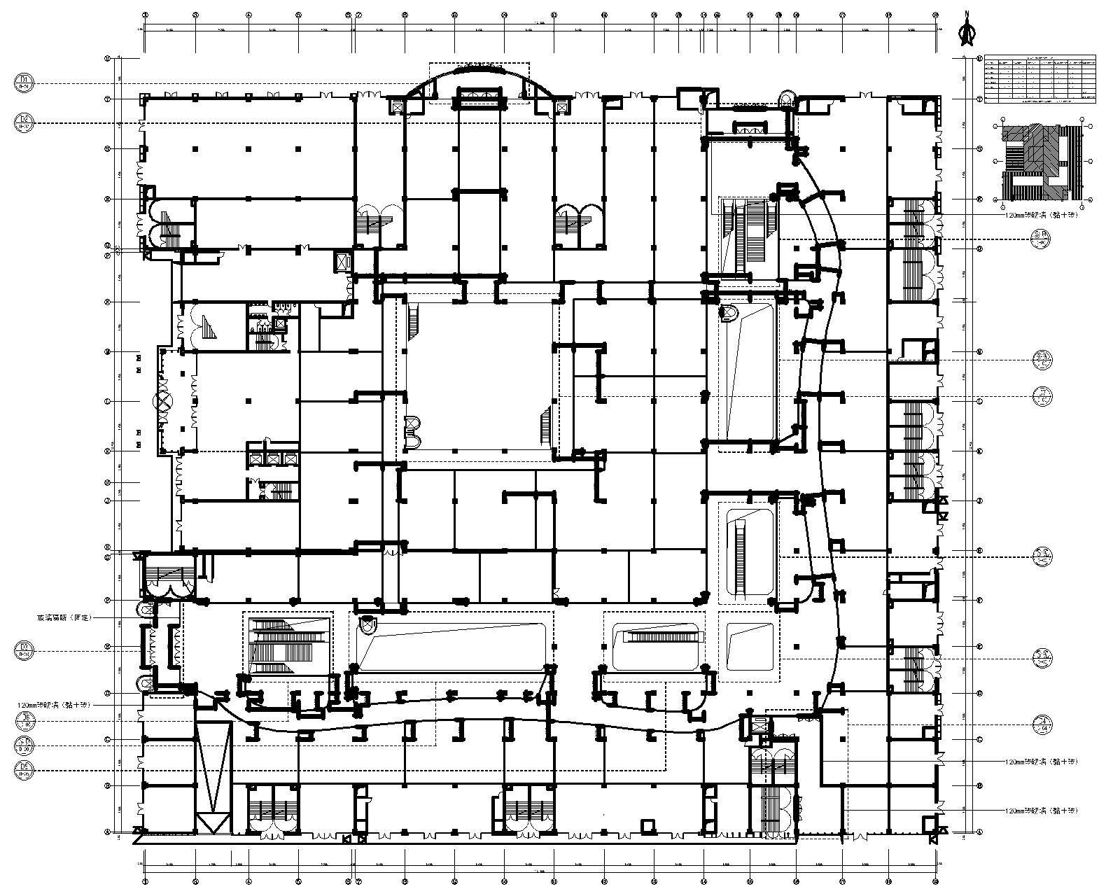
一层动线及隔墙定位平面图

一层综合天花布局图

一层天花布局/材质图

一层天花开线尺寸图

一层地面标高/ 材质分隔图

一层主体示意图

室内设计1

室内设计2

室内设计3

室内设计4

室内设计5

室内设计6

室内设计7

室内设计8

室内设计9
山丹世博丽景效果图 1

效果图 2

效果图 3

效果图 4

效果图 5

效果图6

效果图7

效果图8

效果图9

效果图10

效果图11

总缩略图
su模型,su素材库,3d模型,3d模型库,3d模型下载,3d模型素材,3dmax模型免费下载,cad施工图纸,3d材质贴图,沙发SU模型,椅凳SU模型,柜类SU模型,厨卫SU模型,3D沙发模型,3D陈设饰品,3D柜类模型,3D家装空间,家装CAD图纸,CAD图库,CAD节点详图,橱柜衣柜CAD图纸,CAD施工图,居住建筑效果图,工业建筑效果图,公共建筑效果图
Copyright 易图网 2006-2025 All Rights Reserved ICP证:蜀ICP备2023015644号-6
四川鑫众焱信息技术服务有限公司| 地址:绵阳市涪城区瀚威城市中心1栋1单元42层2号