yituLogo
当前的位置:首页 > 室内CAD图纸 > cad > 商业空间 > 购物中心 > 美特斯邦威武汉旗舰店施工图

图纸介绍

 空间类型:专卖店,店铺             图纸深度:竣工图

项目位置:湖北                            设计风格:现代风格

图纸格式:JPG,CAD2000           设计时间:2017 

包含图片:效果图                        空间划分:成套商业

内容简介

资料内容包含:效果图、CAD施工图(平面、立面、大样)、材料部分、设计图纸等。确定目标,扩大销售量,站在不同角度设想,加大灵活变通性,专卖店的设施尽量可采用可拆换的设备,以便随时改变风格,避免产生单一的风格。

 

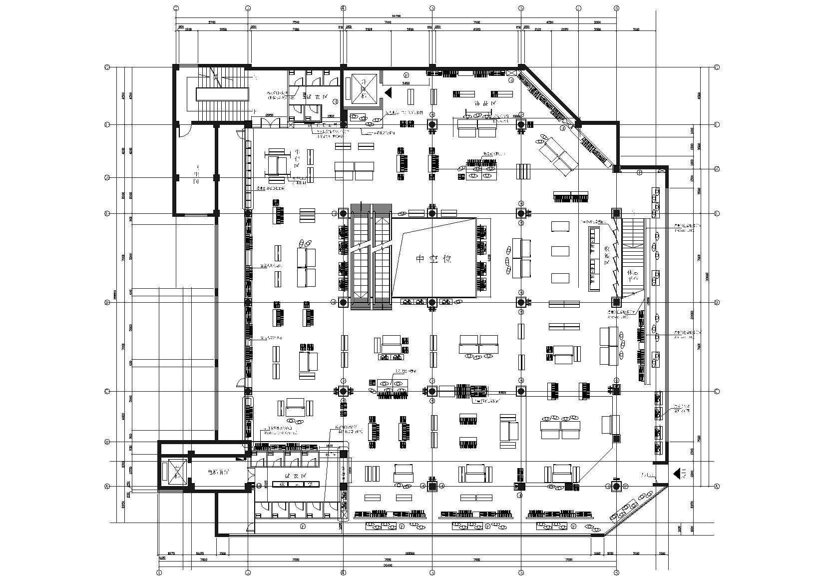
一层<a href=https://www.yitu.cn/su/7392.html target=_blank class=infotextkey>平面</a>布置图

 

一层平面布置图

 

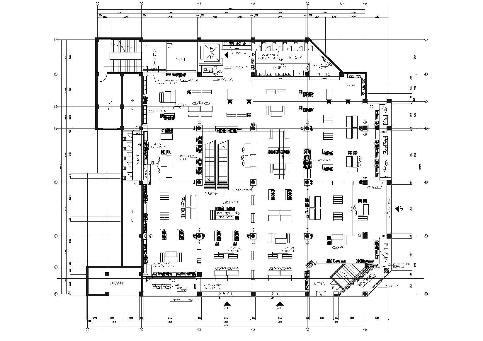
二层<a href=https://www.yitu.cn/su/7392.html target=_blank class=infotextkey>平面</a>布置图

 

二层平面布置图

 

三层<a href=https://www.yitu.cn/su/7392.html target=_blank class=infotextkey>平面</a>布置图

 

三层平面布置图

 

4层<a href=https://www.yitu.cn/su/7392.html target=_blank class=infotextkey>平面</a>布置图

 

4层平面布置图

 

<a href=https://www.yitu.cn/su/6833.html target=_blank class=infotextkey>灯具</a>尺寸图

 

灯具尺寸图

 

<a href=https://www.yitu.cn/su/7872.html target=_blank class=infotextkey>地</a>面铺装图

 

面铺装图

 

外立面

 

外立面

 

外立面2

 

外立面2

 

1F-全景俯视效果a

 

1F-全景俯视效果

 

2F-全景俯视效果a

 

2F-全景俯视效果

 

3F-全景俯视效果a

 

3F-全景俯视效果

 

4F-全景俯视效果a

 

4F-全景俯视效果

美特斯邦威武汉旗舰店施工图

ID:16269
软     件:sketchup 大     小:40.10MB 上 传 时 间:20191026 消 耗 积 分:30
  • 收藏 ()
  • 评论 ()
  • ⚠图纸报错

liuyanping 普通会员

关注
SU模型、3D模型、贴图、材质、CAD施工图素材:

su模型,su素材库,3d模型,3d模型库,3d模型下载,3d模型素材,3dmax模型免费下载,cad施工图纸,3d材质贴图,沙发SU模型,椅凳SU模型,柜类SU模型,厨卫SU模型,3D沙发模型,3D陈设饰品,3D柜类模型,3D家装空间,家装CAD图纸,CAD图库,CAD节点详图,橱柜衣柜CAD图纸,CAD施工图,居住建筑效果图,工业建筑效果图,公共建筑效果图

友情链接 热门模型 免费模型