yituLogo
当前的位置:首页 > 室内CAD图纸 > cad > 商业空间 > 购物中心 > 二层超市建筑设计图下载,超市大样图平面图CAD图纸分享

图纸介绍

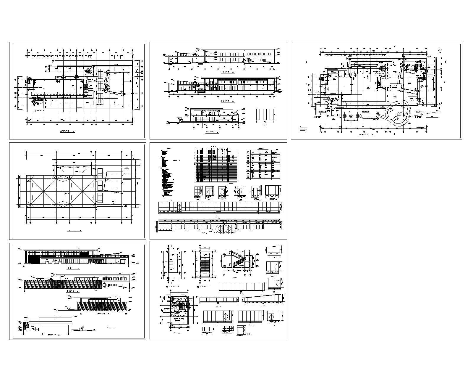
 二层超市建筑设计图下载,图纸内容详尽,构图清晰明了、整体结构性强、能够细致入微,图纸格式为dwg,有兴趣的朋友可以以此为参照设计超市布局平面图,或加以修改,易图网为您提供超市CAD图纸下载服务,好看实用。

 

二层超市建筑设计图下载,超市大样图平面图CAD图纸分享

ID:14283
软     件:sketchup 大     小:1.30MB 上 传 时 间:20190725 消 耗 积 分:30
  • 收藏 ()
  • 评论 ()
  • ⚠图纸报错

向军 普通会员

关注
  • 现代独栋别墅草图大师模型下载,别墅外观sketchup模型分享
  • 自然风别墅外观su模型下载,别墅居住草图大师模型分享
  • 中式别墅草图大师模型下载,别墅外观sketchup模型分享
SU模型、3D模型、贴图、材质、CAD施工图素材:

su模型,su素材库,3d模型,3d模型库,3d模型下载,3d模型素材,3dmax模型免费下载,cad施工图纸,3d材质贴图,沙发SU模型,椅凳SU模型,柜类SU模型,厨卫SU模型,3D沙发模型,3D陈设饰品,3D柜类模型,3D家装空间,家装CAD图纸,CAD图库,CAD节点详图,橱柜衣柜CAD图纸,CAD施工图,居住建筑效果图,工业建筑效果图,公共建筑效果图

友情链接 热门模型 免费模型