yituLogo
当前的位置:首页 > 室内CAD图纸 > cad > 餐饮娱乐 > 餐饮空间 > 现代咖啡店CAD图纸,咖啡店cad设计图纸下载

图纸介绍

                                     空间划分:成套餐饮空间                                                        图纸深度 :施工图

                                    餐饮类型:咖啡店                                                                    图纸格式:JPG

                                    设计风格:现代

资料为:现代咖啡店CAD图纸

资料内容包括:全套施工图、电路系统图、家具尺寸图、平面布置图、路改造图、新建墙体图、原始平面图等,空间设置合理规范,具有较高的参考价值,可作为参考学习的模板,供设计师、建筑师下载参考。

部分图纸展示如下:

电路系统图.jpg

 

电路系统图

 

家具尺寸图.jpg

 

家具尺寸图

 

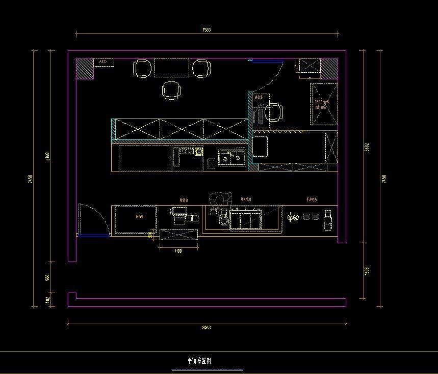
<a href=https://www.yitu.cn/su/7392.html target=_blank class=infotextkey>平面</a>布置图.jpg /></p>
<p style= 

平面布置图

 

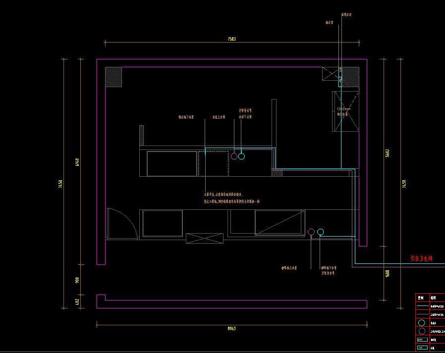
<a href=https://www.yitu.cn/su/5628.html target=_blank class=infotextkey><a href=https://yitu.cn/su/5628.html target=_blank class=infotextkey>水</a></a>路改造图.jpg

 

路改造图

 

原始<a href=https://www.yitu.cn/su/7392.html target=_blank class=infotextkey>平面</a>图.jpg

 

 

原始平面

现代咖啡店CAD图纸,咖啡店cad设计图纸下载

ID:91359
软     件:sketchup 大     小:3.10MB 上 传 时 间:20211020 消 耗 积 分:10
  • 收藏 ()
  • 评论 ()
  • ⚠图纸报错

qianqian 普通会员

关注
  • 户外垃圾桶
  • 户外垃圾桶
  • 户外垃圾桶
SU模型、3D模型、贴图、材质、CAD施工图素材:

su模型,su素材库,3d模型,3d模型库,3d模型下载,3d模型素材,3dmax模型免费下载,cad施工图纸,3d材质贴图,沙发SU模型,椅凳SU模型,柜类SU模型,厨卫SU模型,3D沙发模型,3D陈设饰品,3D柜类模型,3D家装空间,家装CAD图纸,CAD图库,CAD节点详图,橱柜衣柜CAD图纸,CAD施工图,居住建筑效果图,工业建筑效果图,公共建筑效果图

友情链接 热门模型 免费模型