yituLogo
当前的位置:首页 > 室内CAD图纸 > cad > 餐饮娱乐 > 餐饮空间 > 韩国料理烤肉店施工图概念方案效果图,烤肉店cad设计图施工图纸下载

图纸介绍

                                    空间划分:成套餐饮空间                                                          图纸深度 :施工图

                                   餐饮类型:烤肉店                                                                     图纸格式:JPG

                                    设计风格:现代

资料为:韩国料理烤肉店施工图概念方案效果图

资料内容包括:全套施工图、安装大样图、给排设计说明、给排施工图、节点图、平面图、宗家机电施施工图等,空间设置合理规范,具有较高的参考价值,可作为参考学习的模板,供设计师、建筑师下载参考。

部分图纸展示如下:

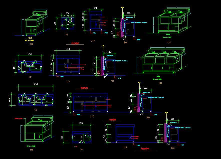
安装大样图.jpg

 

安装大样图

 

给排<a href=https://www.yitu.cn/su/5628.html target=_blank class=infotextkey><a href=https://yitu.cn/su/5628.html target=_blank class=infotextkey>水</a></a><a href=https://www.yitu.cn/su/7590.html target=_blank class=infotextkey>设计</a>说明.jpg

 

给排设计说明

 

给排<a href=https://www.yitu.cn/su/5628.html target=_blank class=infotextkey><a href=https://yitu.cn/su/5628.html target=_blank class=infotextkey>水</a></a>施工图.jpg

 

给排施工图

 

节点图.jpg

 

节点图

 

<a href=https://www.yitu.cn/su/7392.html target=_blank class=infotextkey>平面</a>图.jpg

 

平面

 

宗家机电<a href=https://www.yitu.cn/su/5628.html target=_blank class=infotextkey><a href=https://yitu.cn/su/5628.html target=_blank class=infotextkey>水</a></a>施施工图.jpg

 

宗家机电施施工图

韩国料理烤肉店施工图概念方案效果图,烤肉店cad设计图施工图纸下载

ID:91313
软     件:sketchup 大     小:9.60MB 上 传 时 间:20211018 消 耗 积 分:10
  • 收藏 ()
  • 评论 ()
  • ⚠图纸报错

qianqian 普通会员

关注
  • 户外垃圾桶
  • 户外垃圾桶
  • 户外垃圾桶
SU模型、3D模型、贴图、材质、CAD施工图素材:

su模型,su素材库,3d模型,3d模型库,3d模型下载,3d模型素材,3dmax模型免费下载,cad施工图纸,3d材质贴图,沙发SU模型,椅凳SU模型,柜类SU模型,厨卫SU模型,3D沙发模型,3D陈设饰品,3D柜类模型,3D家装空间,家装CAD图纸,CAD图库,CAD节点详图,橱柜衣柜CAD图纸,CAD施工图,居住建筑效果图,工业建筑效果图,公共建筑效果图

友情链接 热门模型 免费模型