yituLogo
当前的位置:首页 > 室内CAD图纸 > cad > 餐饮娱乐 > 餐饮空间 > 台北风咖啡厅装修方案,咖啡厅CAD施工图设计图下载

图纸介绍

                                     空间划分:成套餐饮空间                                                              图纸深度 :施工图

                                     餐饮类型:咖啡厅                                                                          图纸格式:JPG

                                      设计风格:现代

资料为:台北风咖啡厅装修方案

资料内容包括:全套施工图,吧台正立面图、大包房立面图、过道背景立面图、平面布置图、天布置图、中包立面图等,空间设置合理规范,具有较高的参考价值,可作为参考学习的模板,供设计师、建筑师下载参考。

部分图纸展示如:

<a href=https://www.yitu.cn/sketchup/batai/index.html target=_blank class=infotextkey>吧台</a>正立面图.jpg

 

吧台正立面图

 

大<a href=https://www.yitu.cn/sketchup/baofang/index.html target=_blank class=infotextkey>包房</a>立面图.jpg

包房立面图

 

过道<a href=https://www.yitu.cn/su/7944.html target=_blank class=infotextkey>背景</a>立面图.jpg

 

过道背景立面图

 

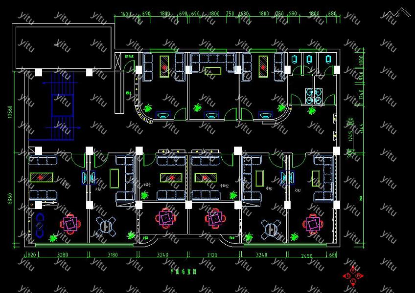
<a href=https://www.yitu.cn/su/7392.html target=_blank class=infotextkey>平面</a>布置图.jpg

 

平面布置图

 

天<a href=https://www.yitu.cn/sketchup/huayi/index.html target=_blank class=infotextkey>花</a>布置图.jpg

 

布置图

 

中包立面图.jpg

 

中包立面图

台北风咖啡厅装修方案,咖啡厅CAD施工图设计图下载

ID:91264
软     件:sketchup 大     小:0.60MB 上 传 时 间:20211013 消 耗 积 分:10
  • 收藏 ()
  • 评论 ()
  • ⚠图纸报错

qianqian 普通会员

关注
  • 户外垃圾桶
  • 户外垃圾桶
  • 户外垃圾桶
SU模型、3D模型、贴图、材质、CAD施工图素材:

su模型,su素材库,3d模型,3d模型库,3d模型下载,3d模型素材,3dmax模型免费下载,cad施工图纸,3d材质贴图,沙发SU模型,椅凳SU模型,柜类SU模型,厨卫SU模型,3D沙发模型,3D陈设饰品,3D柜类模型,3D家装空间,家装CAD图纸,CAD图库,CAD节点详图,橱柜衣柜CAD图纸,CAD施工图,居住建筑效果图,工业建筑效果图,公共建筑效果图

友情链接 热门模型 免费模型