yituLogo
当前的位置:首页 > 室内CAD图纸 > cad > 餐饮娱乐 > 餐饮空间 > 烟雨阁茶社屋顶装修工程图,茶社屋顶cad设计图纸下载

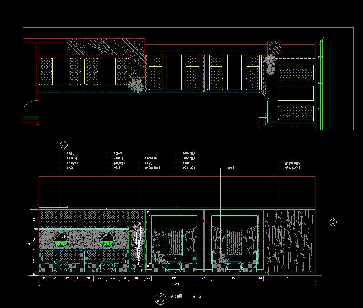
图纸介绍

               空间划分:成套餐饮空间                                                                             图纸深度:施工图

               图纸格式:JPG                                                                                               设计风格:现代

资料为:烟雨阁茶社屋顶装修工程图

资料内容包括:全套烟雨阁茶社屋顶装修工程图,内含二层立面图,二层平面布置图等。该图纸制作详细规范,文字标注统一,细节详尽丰富,内容详实,尺寸大小合理,具有很高的参考价值,可以作为参考学习的模板,供设计师、建筑师下载参考。

部分图纸展示:

二层立面图.jpg

 

二层立面图

 

二层立面图1.jpg

 

二层立面图

 

二层立面图3.jpg

 

二层立面图

 

二层立面图4.jpg

 

二层立面图

 

二层<a href=https://www.yitu.cn/su/7392.html target=_blank class=infotextkey>平面</a>布置图.jpg

 

二层平面布置图

烟雨阁茶社屋顶装修工程图,茶社屋顶cad设计图纸下载

ID:90779
软     件:sketchup 大     小:2.80MB 上 传 时 间:20210115 消 耗 积 分:0
  • 收藏 ()
  • 评论 ()
  • ⚠图纸报错

qianqian 普通会员

关注
  • 户外垃圾桶
  • 户外垃圾桶
  • 户外垃圾桶
SU模型、3D模型、贴图、材质、CAD施工图素材:

su模型,su素材库,3d模型,3d模型库,3d模型下载,3d模型素材,3dmax模型免费下载,cad施工图纸,3d材质贴图,沙发SU模型,椅凳SU模型,柜类SU模型,厨卫SU模型,3D沙发模型,3D陈设饰品,3D柜类模型,3D家装空间,家装CAD图纸,CAD图库,CAD节点详图,橱柜衣柜CAD图纸,CAD施工图,居住建筑效果图,工业建筑效果图,公共建筑效果图

友情链接 热门模型 免费模型