yituLogo
当前的位置:首页 > 室内CAD图纸 > cad > 餐饮娱乐 > 餐饮空间 > 食堂设计施工图纸,食堂CAD施工图纸下载

图纸介绍

                 空间划分:成套餐厅                                  餐饮类型:食堂

                 图纸深度:施工图                                     设计风格:现代风格

                 图片格式:JPG

资料为:食堂设计施工图纸

资料内容包括:全套施工图,屋顶平面图,一层平面图,四层平面图,下层平面图,剖面图,立面图,三层平面图,二层平面图,下层平面图,门表,总平面图,各部分构造做法图,剖面图等,空间设计合理,内容详实,图纸中无错漏碰缺。作图规范,具有较高的参考价值,可供设计师参考。

部分图纸展示:

QQ截图20200625115130.png

 

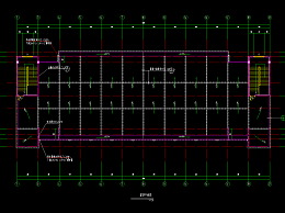
一层平面

 

QQ截图20200625115135.png

 

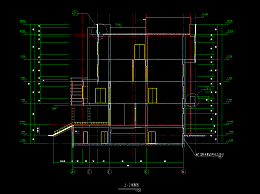
立面图

 

QQ截图20200625115143.png

 

四层平面

 

QQ截图20200625115149.png

 

下层平面

 

QQ截图20200625115157.png

 

立面图

 

QQ截图20200625115203.png

 

三层平面

食堂设计施工图纸,食堂CAD施工图纸下载

ID:25000
软     件:sketchup 大     小:0.70MB 上 传 时 间:20200626 消 耗 积 分:30
  • 收藏 ()
  • 评论 ()
  • ⚠图纸报错

qianqian 普通会员

关注
  • 户外垃圾桶
  • 户外垃圾桶
  • 户外垃圾桶
SU模型、3D模型、贴图、材质、CAD施工图素材:

su模型,su素材库,3d模型,3d模型库,3d模型下载,3d模型素材,3dmax模型免费下载,cad施工图纸,3d材质贴图,沙发SU模型,椅凳SU模型,柜类SU模型,厨卫SU模型,3D沙发模型,3D陈设饰品,3D柜类模型,3D家装空间,家装CAD图纸,CAD图库,CAD节点详图,橱柜衣柜CAD图纸,CAD施工图,居住建筑效果图,工业建筑效果图,公共建筑效果图

友情链接 热门模型 免费模型