yituLogo
当前的位置:首页 > 室内CAD图纸 > cad > 餐饮娱乐 > 餐饮空间 > 蒋国兴阿克苏马仕玖煲施工图

图纸介绍

 图纸深度:施工图               图纸格式:JPG,CAD2000

包含图片:效果图建筑面积:1800㎡概述:

内容简介:项目根据实际情况的了解,做出一系列合理的调整规划与设计思考,针对各个区域做出相应的策略,完善各方面的装修建设,发挥出项目优势,推动项目的发展与进步。餐厅的布局功能分明,主分前厅、散座大厅、包厢区,整体规划动线流畅,入口前厅以黑色为主色,设计师巧妙的运用包间的灯光,透过简单流畅的线条隔墙,暖意洒来,令温馨,而面则用光面如镜的黑色岗岩,与顶部的斜边条镜上下呼应,拉伸了空间感,使来客进厅视觉倍感开阔。透光的木格前台倒影面,别有风味。

 

包厢立面图

 

包厢立面图

 

节点详图

 

节点详图

 

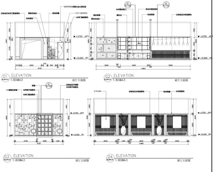
前厅立面图

 

前厅立面图

 

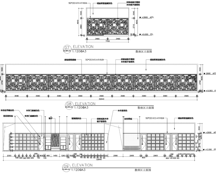
散座区立面图

 

散座区立面图

 

<a href=https://www.yitu.cn/sketchup/canting/index.html target=_blank class=infotextkey><a href=https://www.yitu.cn/su/7825.html target=_blank class=infotextkey>餐厅</a></a>

 

餐厅

 

效果图

 

效果图

蒋国兴阿克苏马仕玖煲施工图

ID:16909
软     件:sketchup 大     小:108.70MB 上 传 时 间:20191104 消 耗 积 分:30
  • 收藏 ()
  • 评论 ()
  • ⚠图纸报错

join19 普通会员

关注
SU模型、3D模型、贴图、材质、CAD施工图素材:

su模型,su素材库,3d模型,3d模型库,3d模型下载,3d模型素材,3dmax模型免费下载,cad施工图纸,3d材质贴图,沙发SU模型,椅凳SU模型,柜类SU模型,厨卫SU模型,3D沙发模型,3D陈设饰品,3D柜类模型,3D家装空间,家装CAD图纸,CAD图库,CAD节点详图,橱柜衣柜CAD图纸,CAD施工图,居住建筑效果图,工业建筑效果图,公共建筑效果图

友情链接 热门模型 免费模型