yituLogo
当前的位置:首页 > 室内CAD图纸 > cad > 餐饮娱乐 > 餐饮空间 > 东方威尼斯咖啡厅装修施工图

图纸介绍

 图纸深度:施工图                     设计风格:中式风格

图纸格式:CAD2000                  图纸张数:53张

内容包含:平面图(平面布置图,天布置图,坪饰面图,隔墙尺寸图,天灯具定位图,索引图,开关点位图);立面图;详图附:施工图JPG像素:1280*748

内容简介:项目根据实际情况的了解,做出一系列合理的调整规划与设计思考,针对各个区域做出相应的策略,完善各方面的装修建设,发挥出项目优势,推动项目的发展与进步。

 

二层<a href=https://www.yitu.cn/su/7392.html target=_blank class=infotextkey>平面</a>图

 

二层平面

 

立面图

 

立面图

 

三层<a href=https://www.yitu.cn/su/7392.html target=_blank class=infotextkey>平面</a>图

 

三层平面

 

四层<a href=https://www.yitu.cn/su/7392.html target=_blank class=infotextkey>平面</a>图

 

四层平面

 

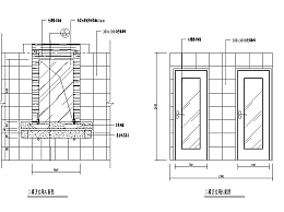
<a href=https://www.yitu.cn/su/7756.html target=_blank class=infotextkey>卫生间</a>立面图

 

卫生间立面图

 

一层<a href=https://www.yitu.cn/su/7872.html target=_blank class=infotextkey>地</a>面铺贴图

 

一层面铺贴图

 

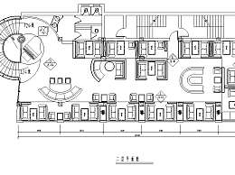
一层<a href=https://www.yitu.cn/su/7392.html target=_blank class=infotextkey>平面</a>图

 

一层平面

 

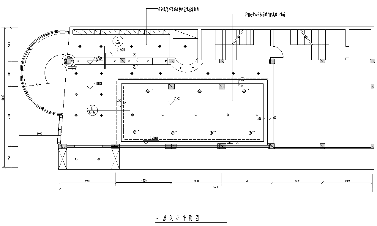
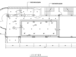
一层天<a href=https://www.yitu.cn/sketchup/huayi/index.html target=_blank class=infotextkey>花</a><a href=https://www.yitu.cn/su/7392.html target=_blank class=infotextkey>平面</a>图

 

一层天平面

 

总览图

 

总览图

东方威尼斯咖啡厅装修施工图

ID:16903
软     件:sketchup 大     小:1.40MB 上 传 时 间:20191104 消 耗 积 分:30
  • 收藏 ()
  • 评论 ()
  • ⚠图纸报错

join19 普通会员

关注
SU模型、3D模型、贴图、材质、CAD施工图素材:

su模型,su素材库,3d模型,3d模型库,3d模型下载,3d模型素材,3dmax模型免费下载,cad施工图纸,3d材质贴图,沙发SU模型,椅凳SU模型,柜类SU模型,厨卫SU模型,3D沙发模型,3D陈设饰品,3D柜类模型,3D家装空间,家装CAD图纸,CAD图库,CAD节点详图,橱柜衣柜CAD图纸,CAD施工图,居住建筑效果图,工业建筑效果图,公共建筑效果图

友情链接 热门模型 免费模型