yituLogo
当前的位置:首页 > 室内CAD图纸 > cad > 餐饮娱乐 > 餐饮空间 > 南宁山尚厨房时尚餐厅施工图

图纸介绍

 图纸深度:竣工图                         设计风格:中式风格

图纸格式:JPG,CAD2000             设计时间:2014

包含图片:实景照片层数:2层[南宁]左加-青秀厨房时尚餐厅施工图+实景拍摄

资料内容包含:实景拍摄、CAD施工图(图纸目录,施工图设计说明、二层平面图,立面图,节点大样,等)材料表等

内容简介:项目根据实际情况的了解,做出一系列合理的调整规划与设计思考,针对各个区域做出相应的策略,完善各方面的装修建设,发挥出项目优势,推动项目的发展与进步。

 

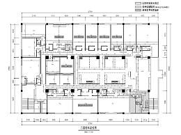
<a href=https://www.yitu.cn/su/7392.html target=_blank class=infotextkey>平面</a>布置图

 

平面布置图

 

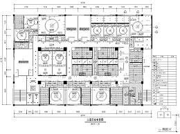
<a href=https://www.yitu.cn/su/7392.html target=_blank class=infotextkey>平面</a>索引图

 

平面索引图

 

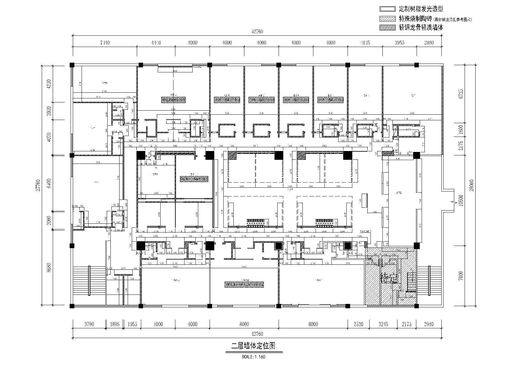
墙体定位图

 

墙体定位图

 

<a href=https://www.yitu.cn/su/7392.html target=_blank class=infotextkey>平面</a><a href=https://www.yitu.cn/su/7872.html target=_blank class=infotextkey>地</a>灯布置图

 

平面灯布置图

 

天<a href=https://www.yitu.cn/sketchup/huayi/index.html target=_blank class=infotextkey>花</a>布置图

 

布置图

 

<a href=https://www.yitu.cn/su/6833.html target=_blank class=infotextkey>灯具</a>定位图

 

灯具定位图

 

开关布置图

 

开关布置图

 

包厢立面图

 

包厢立面图

 

<a href=https://www.yitu.cn/su/7756.html target=_blank class=infotextkey>卫生间</a>立面图

 

卫生间立面图

 

洗手间立面,大样图

 

洗手间立面,大样图

 

1 (1)

 

实景照片

 

1 (2)

 

实景照片

 

1 (4)

 

实景照片

南宁山尚厨房时尚餐厅施工图

ID:16760
软     件:sketchup 大     小:19.10MB 上 传 时 间:20191102 消 耗 积 分:30
  • 收藏 ()
  • 评论 ()
  • ⚠图纸报错

join19 普通会员

关注
SU模型、3D模型、贴图、材质、CAD施工图素材:

su模型,su素材库,3d模型,3d模型库,3d模型下载,3d模型素材,3dmax模型免费下载,cad施工图纸,3d材质贴图,沙发SU模型,椅凳SU模型,柜类SU模型,厨卫SU模型,3D沙发模型,3D陈设饰品,3D柜类模型,3D家装空间,家装CAD图纸,CAD图库,CAD节点详图,橱柜衣柜CAD图纸,CAD施工图,居住建筑效果图,工业建筑效果图,公共建筑效果图

友情链接 热门模型 免费模型