SUQQ群
QQ扫一扫
图纸深度:竣工图 项目位置:新疆
设计时间:2016
包含图片:效果图,实景照片楼层数:1层[新疆]大木叙品-乌鲁木齐般若世界一号店施工图+效果图+实景拍摄
资料内容包含:实景拍摄、效果图,CAD施工图(图纸目录,施工图设计说明、平面图,立面图,节点大样等)材料表,方案等
内容简介:项目的实际情况的了解,做出一系列合理的调整规划与设计思考,针对各个区域做出相应的策略,完善各方面的装修建设,发挥出项目优势,推动项目的发展与进步。

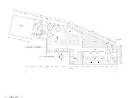
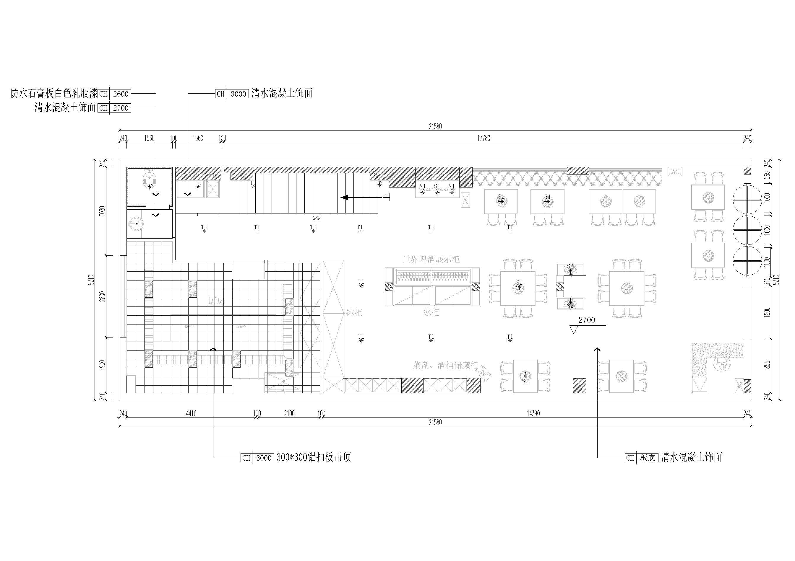
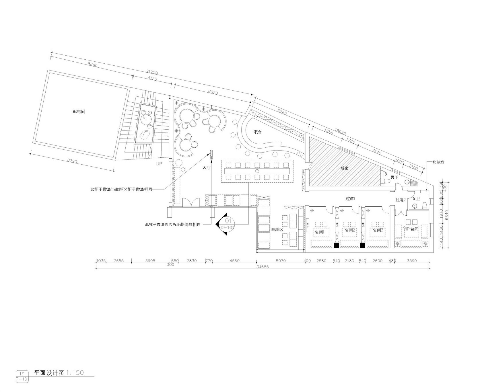
平面布置图

平面大样图

天花布置图

天花尺寸图

包厢2立面图

包厢3立面图

大厅立面图

大厅立面图02

散座区立面图

般若一号实景拍摄

般若一号实景拍摄

般若一号实景拍摄

般若一号实景拍摄
su模型,su素材库,3d模型,3d模型库,3d模型下载,3d模型素材,3dmax模型免费下载,cad施工图纸,3d材质贴图,沙发SU模型,椅凳SU模型,柜类SU模型,厨卫SU模型,3D沙发模型,3D陈设饰品,3D柜类模型,3D家装空间,家装CAD图纸,CAD图库,CAD节点详图,橱柜衣柜CAD图纸,CAD施工图,居住建筑效果图,工业建筑效果图,公共建筑效果图
Copyright 易图网 2006-2025 All Rights Reserved ICP证:蜀ICP备2023015644号-6
四川鑫众焱信息技术服务有限公司| 地址:绵阳市涪城区瀚威城市中心1栋1单元42层2号