yituLogo
当前的位置:首页 > 室内CAD图纸 > cad > 餐饮娱乐 > 餐饮空间 > 川味火锅店装修施工图方案

图纸介绍

图纸深度:施工图                    项目位置:四川

设计风格:中式风格                 图纸格式:CAD2000

图纸张数:30张                       设计时间:2011

包含:平面图(平面布置图,天布置图,坪饰面图,隔墙尺寸图,天灯具定位图,索引图,开关点位图);立面图;详图;封面;目录;设计说明,餐厅设计要注意品牌调性,也就是餐厅的定位;其次要注重创意创新,挑选适合自己风格和布局来展示餐厅风格;还要注意色彩搭配,火锅店主要以红色为主色调;通过打造符合餐饮品牌调性的装修风格来提升格调品质和用餐体验。

附:施工图JPG

像素:1280*748

 

二层<a href=https://www.yitu.cn/su/7392.html target=_blank class=infotextkey>平面</a>图

 

二层平面

 

夹层天<a href=https://www.yitu.cn/sketchup/huayi/index.html target=_blank class=infotextkey>花</a>图

 

夹层天

 

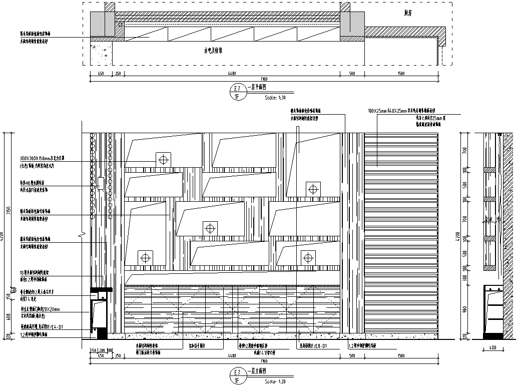
一层立面图

 

一层立面图

 

一层<a href=https://www.yitu.cn/sketchup/louti/index.html target=_blank class=infotextkey><a href=https://www.yitu.cn/su/6782.html target=_blank class=infotextkey><a href=https://www.yitu.cn/su/8159.html target=_blank class=infotextkey>楼</a>梯</a></a>立面图

 

一层梯立面图

 

一层<a href=https://www.yitu.cn/su/7392.html target=_blank class=infotextkey>平面</a>图

 

一层平面

 

一层天<a href=https://www.yitu.cn/sketchup/huayi/index.html target=_blank class=infotextkey>花</a>图

 

一层天

 

总览图

 

总览图

川味火锅店装修施工图方案

ID:16516
软     件:sketchup 大     小:3.40MB 上 传 时 间:20191031 消 耗 积 分:30
  • 收藏 ()
  • 评论 ()
  • ⚠图纸报错

wangyiting QQ登陆会员

关注
SU模型、3D模型、贴图、材质、CAD施工图素材:

su模型,su素材库,3d模型,3d模型库,3d模型下载,3d模型素材,3dmax模型免费下载,cad施工图纸,3d材质贴图,沙发SU模型,椅凳SU模型,柜类SU模型,厨卫SU模型,3D沙发模型,3D陈设饰品,3D柜类模型,3D家装空间,家装CAD图纸,CAD图库,CAD节点详图,橱柜衣柜CAD图纸,CAD施工图,居住建筑效果图,工业建筑效果图,公共建筑效果图

友情链接 热门模型 免费模型