yituLogo
当前的位置:首页 > 室内CAD图纸 > cad > 餐饮娱乐 > 餐饮空间 > 福州曼丹养生馆混搭风格建筑图纸,效果图下载

图纸介绍

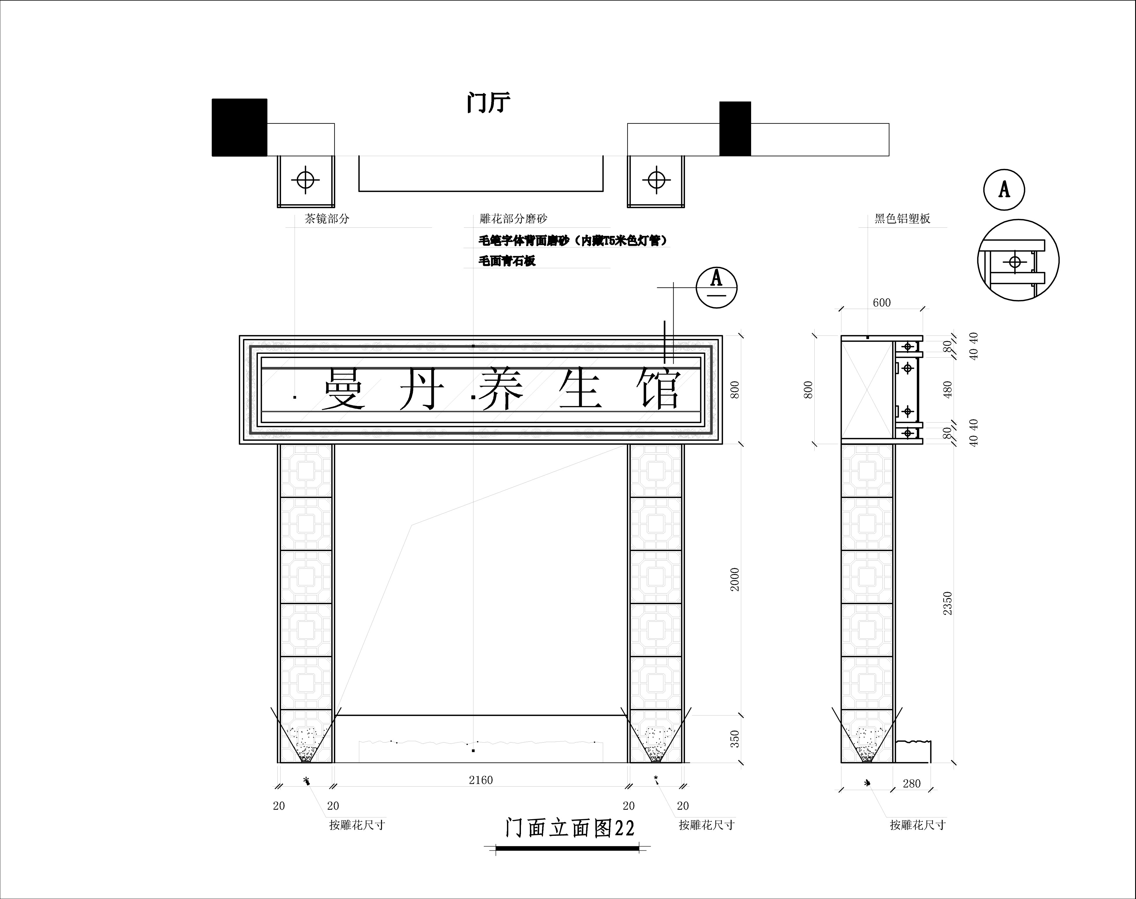
福州曼丹养生馆混搭风格建筑图纸,效果图,养生学源于中国古代哲学思想,做身心灵养生,业主希望空间设计能传达出中国传统文化的意境,而且让进入这个空间能够沉静下来,将环境氛围契合养生项目,为客调整出最好的状态。设计时运用了一些现代的材料和手法,打破太过正统的沉闷感觉。如在以原木作为主材的基础上大胆搭配运用现代感很强的不绣钢材、玻璃等材质,还有不管镜面还是高,密度板,都不是照搬古典的元素,而是把古典元素进行设计变异,以产生一种新的视觉冲击,避免了雷同感并带给一种新的审美享受。 曼丹共有四层,一、二、四层以中式风格为主,而第三层却别具一格,打造成现代风格。如此差异化设计出于两方面考虑:客户群细分和配合实用功能。提供一个现代设计感的层,能够满足部分客户的心理需求,提供给顾客更加丰富的选择。此外,三层主要作为熏蒸 疗区,中式材料和风格会对功能有所限制,并且搭配所用现代化设备会显得突兀,因此设计师运用现代的手法对第三层做了单独处理,使其更加实用。通过空间、色彩、选材及中式元素的灵活运用营造出传统典雅的意境。空间色调以自然色为主,以原木作为主材。而在陈设配套上,契合养生效法自然的精髓……焕发出生命力跃动的自然生机。易图网为您提供下载服务,好看实用。

福州曼丹养生馆混搭风格建筑图纸,效果图下载

ID:13888
软     件:sketchup 大     小:13.90MB 上 传 时 间:20190723 消 耗 积 分:30
  • 收藏 ()
  • 评论 ()
  • ⚠图纸报错

zhangjin 普通会员

关注
  • 苏州古典园林怡园su模型,怡园cad建筑模型下载
  • 苏州狮子园建筑模型,古典私家园狮子林模型下载
  • 苏州古典留园建筑模型,苏州古典园林su模型下载
SU模型、3D模型、贴图、材质、CAD施工图素材:

su模型,su素材库,3d模型,3d模型库,3d模型下载,3d模型素材,3dmax模型免费下载,cad施工图纸,3d材质贴图,沙发SU模型,椅凳SU模型,柜类SU模型,厨卫SU模型,3D沙发模型,3D陈设饰品,3D柜类模型,3D家装空间,家装CAD图纸,CAD图库,CAD节点详图,橱柜衣柜CAD图纸,CAD施工图,居住建筑效果图,工业建筑效果图,公共建筑效果图

友情链接 热门模型 免费模型