SUQQ群
QQ扫一扫
建筑功能:办公 高度类别:多层建筑
建筑面积:5329.84㎡ 地上层数:3层
负荷等级:二级,三级 接地方式:TN-S
项目位置:浙江 强电设计:供配电系统,应急电源,电气照明,其它
本工程为某知名玩具浙江工厂项目。本次设计范围为0110号及0111内部改造设计。其中,0110建筑为工业配套用房的办公区,建筑面积3314.62平方米,建筑层数3层;0111建筑为工业配套用房的办公区,建筑面积为2015.22平方米,建筑层数为3层。
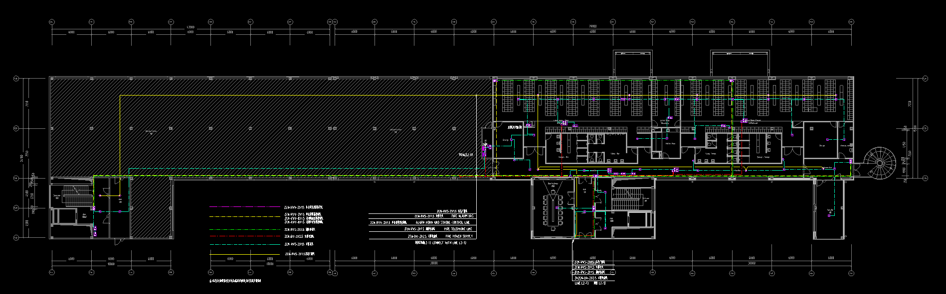
一、设计范围
火灾自动报警及消防联动系统等。
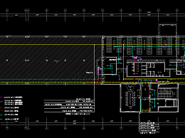
二、图纸特点
此项目为厂房配套办公楼电气设计,专业性适中,复杂程度一般。此套图纸涵盖建筑电气的基础,且有应急疏散、厨房设备配电等相关内容,图面清晰美观,适合广大电气人员参考学习。
部分图纸展示:

二层疏散照明平面图

二层应急照明平面图

二层照明平面图

配电干线图

配电箱系统图1

配电箱系统图2
会员在本站下载的原创CAD图库后,只拥有CAD图库的使用权,著作权归原作者及易图网所有。未经合法授权,会员不得以任何形式发布、传播、复制、转售该CAD图库。特别地,不得擅自以易图网名义或使用"易图"、"易图网"(本站注册商标)名称发布、复制、转售所下载的CAD图库,由此给本站造成损害的,本站将依法追究其相关法律责任。
Copyright 易图网 2006-2025 All Rights Reserved ICP证:蜀ICP备2023015644号-6
四川鑫众焱信息技术服务有限公司| 地址:绵阳市涪城区瀚威城市中心1栋1单元42层2号